Производство своими руками
Технология самостоятельного изготовления арболита не сложная при наличии необходимого инструмента и устройств. Если соблюдать все правила и критерии изготовления, правильно рассчитать компоненты продукт будет иметь высокое качество и прочность.
Материалы и приспособления:
- Специальная емкость для компонентов.
- Вибрирующий стол.
- Поверхность с ударно встряхивающими функциями.
- Металлические поддоны.
- Для того чтобы получить качественный раствор необходима автобетономешалка. Если смешивать собственноручно, то для получения раствора нужной консистенции понадобится много времени и сил.
- Специальные пластиковые формы необходимых размеров. Арболитовые блоки имеют прямоугольную форму, стандартные размеры – 500х189х300 мм и 500х188х200 мм.
- Специальный станок профессионально измельчит щепу.
- При помощи пресса получается высокая плотность материала. При процессе трамбовки из материала по максимуму убирается воздух.
- Камера для сушки блоков из арболита превращает структуру в твердый однокомпонентный материал.
- Лопаты для того чтобы загрузить смесь в формы.
- Армирующая сетка применяется для скрепления древоблоков.
При наличии таких приспособлений в среднем производится за месяц от 400 до 500 кубометров строительной смеси. Рекомендуемая минимальная величина производственного помещения 500 м2. Расходы электроэнергии составят 15-45 кВт?ч. При подготовительных работах органические компоненты заливают жидким цементом до образования однородной массы. Соблюдая пропорции и расчеты, получившаяся смесь должна быть сыпучей.
Бункеры и формы имеют стандартный размер 20х40х60 см их можно сварить или сделать наборными из раскроенных листов металла. Рекомендуется блоки при изготовлении располагать вертикально, это упростит трамбовку при малой площади пресса.
Арболитовые блоки из древесной щепы
После подготовки органического материала, можно делать непосредственно древесно бетонные блоки.
- Щепу нужно засыпать в бетономешалку, добавить воды и цемент. Соотношения должны быть такими: на три части дробленой древесины добавляется четыре части воды и три части цемента.
- Смесь нужно мешать до тех пор, пока она не станет однородной и немного рассыпчатой на вид. Но при этом из такой массы можно сделать комок.
- Форма для блоков предварительно обрабатывается известковым молоком.
- Готовый раствор высыпается в емкость слоями. Каждый шар нужно хорошо утрамбовывать.
- После того, как форма заполнится смесью наполовину, нужно один слой сделать из обычного бетона, положить армирующую сетку и снова залить бетонной смесью. После этого форма до конца заполняется массой со щепой. Сделать блоки можно и без сетки, но такие заготовки намного прочнее и долговечнее. Каждый утрамбованный слой нужно протыкать в нескольких местах заточенной арматурой. Это позволит удалить воздушные пузыри.
- Когда до краев емкости останется пару сантиметров, нужно залить раствор штукатурки и хорошо разровнять поверхность. Этот метод позволит получить готовые блоки из уже отштукатуренной стороной.
- Такой материал застывает сутки.
- Готовый блок нельзя использовать сразу. Лучше его оставить на воздухе под пленкой на четырнадцать дней при высокой температуре воздуха. Если градусы на улице показывают отметку ниже 10, то и срок гидратации повышается.
Наиболее популярные производители и модели
Перед тем, как приступить к созданию собственного проекта, полезно ознакомиться с устройством и особенностями наиболее удачных промышленных образцов. Это помогает точнее понять принцип работы, внести в схему необходимые уточнения.
Рассмотрим некоторые из популярных моделей щепорезов:
Skorpion 350 SDB

Польская дробилка барабанного типа. Справляется не только с мелкими, но с крупными заготовками (поленья до 280 мм). Обладает повышенным запасом прочности режущего инструмента, гусеничная подача способствует обработке мелких фрагментов древесины.
Моби 250

Автономные измельчители, выполненные в виде полуприцепа. Оснащены собственными дизельными двигателями, подключаются к системе гидропривода. Предназначены для работы в полевых условиях.
Cramer COMBI CUT 9600

Немецкий агрегат, обладает хорошим качеством сборки и высокой надежностью всех узлов и деталей. Выполнен в виде автономного узла с собственным двигателем Honda. Способен переработать 830 кг сырья в час.
MTD ROVER 464 Q

Садовый измельчитель веток полупрофессионального уровня. Оснащен двумя раздельными диффузорами для загрузки веток и стеблей растений. Привод от бензинового мотора, для перемещения имеются 2 колеса.
Дровосек МР 300

Универсальный отечественный щепорез стационарного типа, способный работать с электроприводом 22, 380 В или на базе бензинового двигателя. Способен перерабатывать до 300 кг сырья в час. Предназначен для садовых работ с ветками и скошенными стеблями растений.
Viking GE 105

Дисковый щепорез, изготовленный в Австрии. Используется для измельчения веток, обзола и прочих видов исходного сырья. Оснащен электроприводом, максимальная толщина заготовок — 35 мм.
Калибр ЭСИ-2400Н

Китайский садовый измельчитель дискового типа. Оснащен электроприводом с питанием от сети 220 В. Компактный и легкий агрегат, вес которого составляет всего 11 кг.
Техника безопасности
Эксплуатация дробилки древесины, собранной своими руками, требует обязательного соблюдения техники безопасности и технического обслуживания.
На площадке, на которой производится изготовление деревянной щепы, не допускается присутствия детей.
Основные требования техники безопасности при эксплуатации щепореза, изготовленного своими руками:
- Рабочая одежда. Не допускается производить работу со станком, в форме со свисающими рукавами или другими частями одежды во избежание затягивания частей тела в режущую часть щепореза. Полезными также окажутся рукавицы, щиток для защиты лица, глаз и носа.
- Перед применением щепореза необходимо произвести затяжку болтов, а также убедиться в целостности корпуса и отсутствии механических повреждений двигателя. Если на дробилку установлен электрический двигатель, нелишним будет проверить заземление.
- После запуска двигателя необходимо дождаться полной раскрутки режущего узла. Только после этого допускается загружать первую порцию древесины.
- Во время уборки готовой деревянной щепы необходимо произвести остановку двигателя щепореза и прекратить работу. Также не допускается нахождение людей в области выброса щепы во время ее производства на расстоянии 5 метров от выходного устройства.
- Не стоит забывать и о пожарной безопасности. Запрещается курить и пользоваться открытым огнем в непосредственной близости от работающего щепореза.
Общая информация
Перед тем как начать создавать щепорубительную машину своими руками, необходимо разобраться в ее особенностях, принципе работы и предназначении. Щепа является одним из ключевых элементов арболита или щепкобетона — популярного строительного материала, на основе которого создают малоэтажные помещения.Это интересно: технология производства арболита. На рынке арболит продается в виде прямоугольных блоков и содержит в себе цементные смеси марок 400 или 500. В роли дополнительных компонентов используют переработанные древесные отходы, размерами 5×5×25 мм. В числе подобных отходов:
- Опилки.
- Крупная стружка.
- Щепа.
В данном видео рассмотрим как сделать щепорез своими руками:
Именно для производства последнего сырья и разрабатываются специальные щепорубительные установки. Технология создания арболитов на основе щепы выглядит следующим образом:
- Изначально подготовленные отходы древесины заливают водой, тщательно смешивают и перемещают в резервуар на пару часов. После продолжительной выдержки процент содержания клетчатки в сырье заметно снижается, что позволяет создавать на его основе качественные и устойчивые блоки.
- После этого полученную массу помещают в другой резервуар и заливают раствором хлорида кальция и сульфата алюминия. Эти вещества окончательно очистят консистенцию от остатков клетчатки.
- К древесным отходам добавляют цементную смесь и известь в пропорции 3:4:4. Затем следует поместить материал в бетономешалку и перемешать до полурассыпчатого состояния. Продукт должен обладать однородной консистенцией и не содержать в своем составе комков или несмоченных участков.
- В итоге полученную массу выкладывают в специальных формах, которые предварительно смазываются машинным маслом, и выдерживают при комнатной температуре до тех пор, пока она не затвердеет.
Что касается сфер применения арболита в строительстве, то они довольно обширные. На основе этого материала создают перемычки, стеновые конструкции, отдельные элементы полов и даже полноценные фундаментные блоки. В последнем случае к арболиту нужно добавлять цемент более высокой марки.
Такой строительный материал характеризуется высокой прочностью и хорошей теплоемкостью. Ему не страшны температурные скачки или повышение влажности, а огнестойкость и устойчивость к коррозийным процессам остаются на высшем уровне.
Изготавливаем щепорез для арболита своими руками
Некоторые детали, чертежи которых представлены ниже, необходимо выточить на токарном станке, остальные можно изготовить своими руками в домашних условиях.
Основные размеры щепореза для арболита
Диск с ножами
Диаметр диска составляет около 300-350 миллиметров, а толщина – около 20 миллиметров. Чтобы предотвратить заклинивание больших и твердых кусков древесины, диск должен работать как маховик. Поэтому его надо сделать тяжелым. Для диска берем металлическую заготовку либо вырезаем его из листовой стали; затем пропиливаем в нем одно центральное отверстие для посадки на вал (учитывая шпоночное крепление), несколько монтажных отверстий и 3 паза, через которые отрезанные части древесины попадают под вращающиеся молотки.
Рубильный диск с ножами
Для изготовления ножей используем автомобильные рессоры. В каждом ноже делаем два отверстия с последующим их зенкованием (чтобы головки винтов были максимально утоплены) и крепим их к диску с помощью болтов с потайной головкой под шестигранник, которые обеспечивают плотное и надежное соединение, а также не позволяют болтам проворачиваться во время обжатия гаек с противоположной стороны.
Молотки
Вал и крепление для молоточков
Молоточки и приваренный отбойник
Молотки – это плоские пластины (толщиной около 5 миллиметров), которые расположены на роторе. Они осуществляют дополнительное измельчение щепы. Молоточки лучше купить готовые. Расстояние между молотками в дробилке арболита 24 мм.
Расстояние между молотками в дробилке арболита
Сито для щепореза
Для изготовления сита, внутри которого будет располагаться растирочная камера, нужен металлический цилиндр Ø 300–350 мм изготавливаемый из металлического листа длиной L 942–1100 мм. В этом цилиндре пробиваются ячейки диаметром 8–12 мм. Просверливать их нежелательно – края ячеек должны быть острыми или рваными, поэтому отверстия рекомендуется проделать пробойником или керном нужного диаметра.
Защитный кожух, воронка, приемный бункер и рама
Для защитного кожуха, и воронки для приемного бункера подойдет листовое железо толщиной 8–12 мм. Листы нарезаются в размер и свариваются в конструкцию так, как указывают чертежи. Нарезаем все детали по заранее подготовленным «выкройкам» (их делаем из плотного картона) Ребра жесткости делаются из уголков, швеллеров или труб.

Защитный кожух
Важно! Сам режущий узел не должен цепляться за стенки корпуса, поэтому чтобы режущий узел свободно размещался в корпусе, диаметр маховика должен быть меньше размера корпуса на 30–50 мм. Оборудование дробильного узла: цапфы вала, на которые необходимо насадить опорные подшипники, плюс била (молотки) и режущий диск. Следующий шаг по изготовлению щепореза — нужно вырезать отверстия для рабочего вала, а также входные и выходные раструбы для подачи сырья и выхода щепы
Следующий шаг по изготовлению щепореза — нужно вырезать отверстия для рабочего вала, а также входные и выходные раструбы для подачи сырья и выхода щепы
Оборудование дробильного узла: цапфы вала, на которые необходимо насадить опорные подшипники, плюс била (молотки) и режущий диск. Следующий шаг по изготовлению щепореза — нужно вырезать отверстия для рабочего вала, а также входные и выходные раструбы для подачи сырья и выхода щепы.
Рабочий вал
Приемный бункер приваривается к корпусу под углом. Механический и электрический приводы монтируются в последнюю очередь: на раму крепится электродвигатель, затем шкивы требуемого диаметра, и все узлы соединяются ременной передачей. Для этого можно использовать обычные автомобильные ремни подходящего диаметра.
Рама
Двигатель
От вида двигателя зависят производительность щепореза и объемы затрат на эксплуатацию. Экологичный электродвигатель не очень шумит, намного легче ДВС, но менее мощный, чем его «собрат». К тому же работа щепореза на электротяге зависит от скачков напряжения в электросети.
Агрегат на бензиновом, более мощном двигателе, работает дольше, больше и он не зависит от розетки электропитания. Но ДВС очень шумит, загрязняет воздух, требует ухода и его постоянно надо заправлять.
Если собранный щепорез для арболита соответствует требованиям точности и в соосности не будет разбега, то можно применить не ременное соединение, а соосную схему — можно подключить валы через муфту.
Состав деревобетона
Этот материал наделен уникальными теплопроводными свойствами благодаря своим составляющим. Как и все бетонные блоки в нем присутствует связующее в виде цемента, в большинстве случаев при производстве этого материала используется портландцемент марки М400 или М500.
В качестве основного наполнителя, занимающего практически 90% объема материала, является щепа.
Химические добавки могут составлять 2-4% от общей массы бетонного блока. Они повышают его прочность и, соединяясь, с присутствующими в древесине сахарами образуют соединения.
В некоторых случаях в него добавляют песок и гашеную известь.
Применяемая для разведения строительного состава вода, наливается в раствор в теплом виде, ее температура должна быть +15 0 С. Если же она будет меньше этого значения, то скорость схватывания цементного состава будет ниже.
Точные пропорции составляющих арболита зависят от выбранной его марки.
Конструкция щепореза для арболита
Если решились сделать щепорез для арболита своими руками, приступаем к изучению чертежей и разбираемся с материалами и инструментами. Независимо от конструкции агрегата, он состоит из следующих основных элементов:
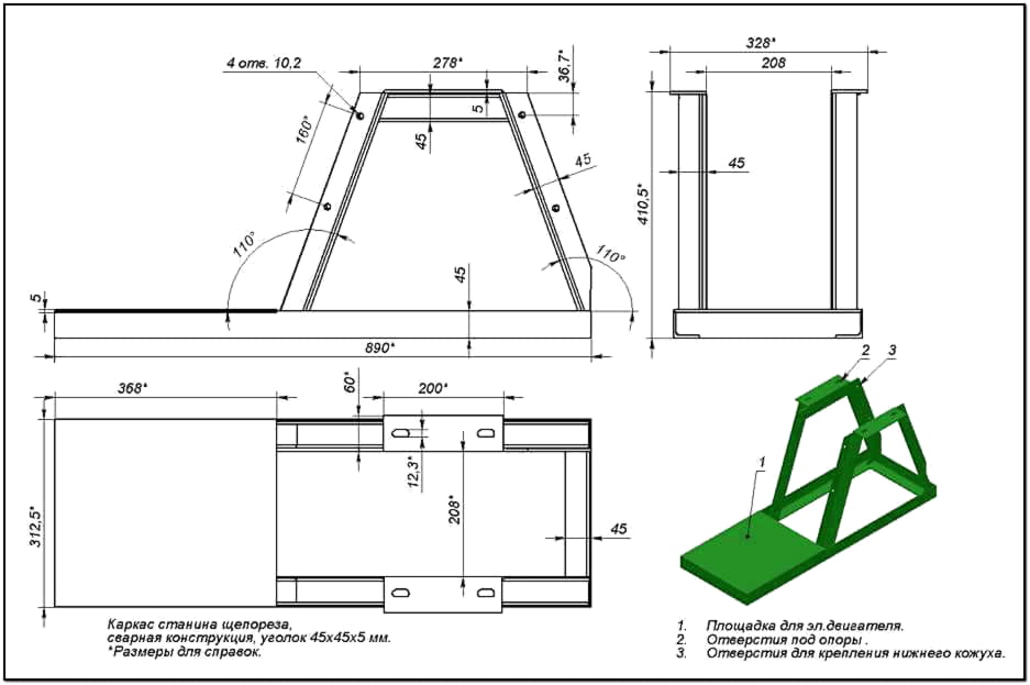
- станины — ее делают из профильной трубы или уголка;
- корпуса — для его изготовления используется листовая сталь;
- рабочего элемента;
- электродвигателя — вместо него может быть бензиновый или дизельный мотор.
Рассмотрим подробнее эти и другие элементы далее.
Корпус дробилки с кожухом
Во время работы механизма корпус должен обеспечивать безопасность оператора, находящихся рядом людей. Для его создания применяют листовую сталь толщиной 1-2,5 мм. Сначала из труб или уголков делают каркас, а затем обшивают его железом.

Для упрощения ремонта, обслуживания агрегата, он должен иметь откидной или съемный кожух. Его делают из того же материала, что и корпус. Дополнительно укрепляют конструкцию при помощи ребер жесткости. Чтобы режущий узел не касался корпуса дробилки, диаметр маховика должен быть меньше размера корпуса на 3-5 см.
Электрический двигатель
При самостоятельном изготовлении такого станка чаще всего используют электрический двигатель. Если же работа будет выполняться вдали от доступа к электроэнергии, придется использовать бензиновый или дизельный мотор.
Электродвигатель работает практически бесшумно, легче ДВС, но его мощность ниже, чем у бензинового или дизельного мотора. Кроме этого, его работа зависит от перепадов напряжения. Чаще всего электромотор подключают при помощи ременного соединения.
Молотки и режущий элемент
Для более качественного измельчения щепы на роторе через каждые 20-25 мм закрепляют плоские пластины (молотки) толщиной 5-6 мм. Эти элементы должны быть одинаковыми, чтобы соблюдалась балансировка вала, поэтому лучше купить уже готовые молотки или изготавливать их с особой точностью.

Режущий диск делают диаметром 30-35 см, а толщиной не менее 2 см. Он будет работать в режиме маховика, что уменьшает вероятность заклинивания вала при попадании щепы между корпусом и диском.
Прочные, надежные ножи получаются с автомобильных рессор. Крепежные отверстия в них делают с потаем, чтобы утопилась головка болта, и надежно фиксируют на диске.
Калибрующее сито
Этот элемент выполнен в виде цилиндра с отверстиями диаметром 8-12 мм. Для их создания лучше использовать пробойник, а не сверло, т.к. края отверстий должны быть острыми и рваными.
Толщина листа, из которого делают калибрующее сито, не менее 5 мм. Для создания цилиндра диаметром 30-35 см понадобится лист длиной 94-110 см.
Подающее устройство
Этот элемент обеспечивает безопасную подачу материала для переработки. Чтобы обезопасить и упростить загрузку, подающее устройство делают под углом, тогда древесина движется к рабочему элементу под собственным весом, исключается ее выбрасывание назад. Бункер делают из листа стали толщиной 1-2,5 мм, на стыках усиливают его уголками или арматурой.

Покупка прибора
При желании приобрести щепорубительную машину в магазине необходимо понимать, что она может стоить очень дорого. Средняя стоимость заводской модели составляет около 3 миллионов рублей. Естественно, такое оборудование демонстрирует высокую производительность, но для бытовых целей покупать его нецелесообразно. Вместо этого лучше найти отдельные агрегаты для сушки, дробления и окрашивания щепы, что обойдется в разы дешевле.
В зависимости от способа измельчения исходного сырья дробилки бывают дисковыми и роторными. Представители первой группы оборудованы острыми дисковыми ножами, в то время как роторные модели работают на основе вращающейся рабочей камеры или барабанов, где находятся ножи.
Выбирая подходящий вариант дробильного оборудования, важно обращать внимание на толщину корпуса. Желательно, чтобы она составляла не меньше двух сантиметров в месте режущего узла. В противном случае при работе на высоких оборотах механизмы могут деформироваться или вовсе выйти из строя
В противном случае при работе на высоких оборотах механизмы могут деформироваться или вовсе выйти из строя
В противном случае при работе на высоких оборотах механизмы могут деформироваться или вовсе выйти из строя.
Преимущества и недостатки измельчения
Технику для измельчения пней используют только в тех случаях, когда не стоит задачи полного уничтожения крупных корней. Чаще всего необходимость измельчения пней возникает при подготовительных работах перед изменением дизайна участка или во время прокладки/ремонта дорог или пешеходных дорожек.
Кроме того, измельчают пни в тех случаях, когда их корчевание может привести к слишком сильному нарушению структуры грунта.

К примеру, нельзя корчевать пень, который стоит рядом с домом, ведь велика вероятность, что один или несколько корней проходят под фундаментом.
Во время корчевания такие корни могут повредить фундамент или разрыхлить грунт под ним, из-за чего внутри фундамента возрастет напряжение на излом.
Кроме того, удаление корней под фундаментом приводит к образованию полостей, которые затем заполняет вода. Если фундамент установлен выше уровня промерзания грунта, то во время морозов вода в полостях замерзнет и сильно повредит стены дома из-за морозного пучения.
Также измельчение предпочтительней при подготовке траншеи под фундамент, ведь извлечение корней разрыхляет грунт, поэтому придется многократно уплотнять дно, досыпая землю и песок по мере заполнения пустот.
Кроме того, корчевание предпочтительней там, где планируется выращивать злаковые или плодовые растения, ведь при распашке или бороновании почвы толстые поверхностные корни могут повредить оборудование или трактор.
Собираем щепорез своими руками
Чтобы изготовить это оборудование в домашних условия, нужно иметь некий опыт работы с металлом. Некоторые детали можно получить только на токарном станке. Но большинство же собираются в домашних условиях.
Щепорез для арболита может работать от напряжения в 220 или 380 В. Вот его основные узлы:
1) Корпус с откидным кожухом.
2) Вращающиеся биты с молотами, которые как раз-таки и делают из дерева щепки. Они разделены отбойниками.
3) Диск с ножами.
4) Сито, со специальными отверстиями Ø 15–20 мм, для калибровки щепы.
5) Подающий бункер.
Теперь разберемся как сделать все эти узлы для щепореза самостоятельно.
Диск с ножами
Готовый диск должен быть диаметром 300—350 мм, его толщина — 20 мм. Чтобы его изготовить можно взять либо металлическую заготовку, либо вырезать из листа стали. После этого в центре пропиливается отверстие, через которое будет проходить вал (учитывайте шпоночное крепление). Затем нужно подготовить несколько монтажных отверстий и выпилить 3 паза, в которые и будет проходить древесина.
Чтобы сделать ножи можно использовать автомобильные рессоры. В каждой из трех заготовок проделываются монтажные отверстия. Эти отверстия под болты нужно углубить (зенковать), чтобы головки крепежных элементов были утоплены. Осталось лишь прикрутить ножи к диску.
Молотки
Молотки представляют из себя плоские пластины толщиной 5 мм. Они крепятся на роторе. Рекомендуется купить готовые молотки и установить на дробилке для арболита с шагом в 24 мм.
Калибровочное сито
На роль сита подойдет металлический цилиндр такого же диаметра, как и диск с ножами, и длиной 950—1100 мм. В нем проделываются отверстия диаметром от 8 до 12 мм. Лучше всего эти отверстия пробить отбойником или керном, чтобы получились острые, рваные края.
Воронка, защитный кожух, рама и приемный бункер
Для приемного бункера и защитного кожуща понадобится листовая сталь толщиной 8—12 мм. Нужно вырезать такие же детали, как на чертеже и сварить их весте. В роли ребер жесткости можно использовать уголки, швеллеры или трубы.
Чтобы щепорез для арболита нормально работал диаметр корпуса должен быть больше диаметра диска с ножами на 30—50 мм.
Теперь вырезаем отверстие для рабочего вала, входных и выходных раструбов, через которые подается древесина и выходят щепки
Под углом к корпусу приваривается приемный бункер. В конце на раму крепится электродвигатель, шкивы и все соединяется ремнем (подойдет автомобильный ремень).
Разрешается использовать и двигатель ДВС, но с ним больше мороки (заправлять, смазывать, ремонтировать, много шума, угарный газ). В то же время, двигатель ДВС не зависит от электричества и может работать на любом складе.
Собираем щепорез из готовых деталей
Первым делом на вал ставим подшипники, диск с ножами и молотки, рубильный блок готов. Вырезаем отверстия в корпусе для установки рабочего вала, приемного бункера и выгрузки щепок. Просверливаем отверстия под сборочные болты и привариваем воронку приемного бункера. На раме крепим электродвигатель, устанавливаем шкивы и накидываем ремень. Закрепляем рубильный блок на раме и закрываем его защитных кожухом. Пробуем запустить готовый щепорез в холостую.
Первую неделю лучше работать с минимальной нагрузкой и непродолжительный период времени. Так можно подшипники не будет клинить из-за перегрева.
Надеюсь, вам была интересна эта статья и вы поставите ей лайк. Также, если вам интересно прочитать как можно сэкономить на строительстве и ремонте подпишитесь на этот канал.
Спасибо за внимание
Как сделать щепорез своими руками: чертежи, устройство конструкции
На завершающем этапе щепа с помощью лопастей попадает на сито и вылетает из щепореза через отверстие для выгрузки. На входе приемный бункер выполнен в виде воронки для того, чтобы упростить подачу сырья для переработки и сделать этот процесс безопасным для рук.
При увеличении частоты вращения вала с диском какое-то количество древесного сырья может перемолоться в труху естественно, это плохо , хотя производительность щепореза при этом возрастает.
Необходимые чертежи, по которым для производства арболита может быть изготовлена самодельная роторно-молотковая дробилка, представлены ниже. Так как оборудование самодельное, то и размеры деталей придется подбирать, исходя из собственного материала. Рабочие чертежи разных щепорезов могут отличаться размерами и наличием тех или иных узлов, но принцип работы остается одинаковым. После подачи на оборудование напряжения В электродвигатель предает свое вращение при помощи клиноременной передачи на барабан с лезвиями 4 через шкив 14 и вал.
Нужно только закладывать в подающий бункер древесные отходы, которые сразу перерабатываются в щепу оптимальной длины до 25 мм. Собрав щепорез для арболита своими руками и выдержав расстояние между молотками в дробилке арболита можно производить щепу длиной до 25 миллиметров и шириной около 5 миллиметров. Такая щепа идеально подходит для изготовления арболитовых блоков или приготовления монолитного арболита. Оно выполняется под определенным углом, за счет чего ветки не выбрасываются назад.
Если вы планируете заниматься строительством дома из самостоятельно изготовленных арболитовых блоков или монолитного арболита, то вам понадобиться щепа. Используя его, вы значительно улучшите качество блоков, да и впоследствии, после завершения всех строительных работ, он вам пригодится в качестве садового измельчителя для переработки отходов, оставшихся после осенней уборки огорода, а также обрезки кустарников и деревьев. Изготовить щепорез для арболита можно, используя определенный набор инструментов и подручных материалов. Основными узлами станка являются рубильный диск с ножами и ротор с молотками и лопастями.
Прежде чем конструировать щепорез своими руками, необходимо подготовить все детали. Для изготовления диска понадобится металлический лист толщиной мм.
Из чего состоит щепорез
Диаметр готового изделия должен быть примерно мм. В центре делается отверстие, куда помещается шпонка, а по внешнему периметру — симметричные прорези. Через них будет отводиться стружка.
Для крепежа ножей подготавливаются отверстия. Щепорез своими руками можно собрать с применением готового диска. В любом случае диск одновременно будет являться маховиком.
Для подготовки ножей, каждый из которых должен иметь два отверстия, чаще всего рекомендуют брать рессоры от легкового автомобиля. Ножи для щепореза закрепляются с помощью болтов, которые откручиваются закручиваются шестигранным ключом. Этот факт объясняется тем, что болты под отвертку закручиваются не так плотно. Под молотками понимают плоские пластины металла, толщина которых составляет порядка 5 мм.
Располагаются они на роторе. Это те детали, которые лучше купить уже готовые. Необходимо подготовить сито. При установке ножей в рубительную машину необходимо обеспечить требуемую выставку ножей за плоскость диска.
Разница в выставке ножей не должна превышать 0,2 мм.
Режим шлифования
Режущие кромки ножей должны лежать в одной плоскости, зазор между режущими ножами и контрножами должен быть равномерным 0, С целью повышения стойкости режущей кромки ножей к выкрашиванию сколы в процессе эксплуатации рекомендуется:.
После заточки ножей под требуемый угол, произвести дополнительную заточку с обратной стороны фаски на ширине 0, После каждой переточки ножи должны находится в покое вылеживании не менее х часов для снятия усталостных напряжений. Примечание: Ножи рубильные изготовленные из других марок сталей сопровождаются дополнительной информацией к инструкции.
О компании. Фотогалерея Видеогалерея. В наличии на складе : 26 ед. Отгрузка рубилки Junkkari hjg в г. Дровокол гидравлический станок для колки дров Japa Финляндия Количество : 1 шт. Упаковщик для дров Palax Motti Количество : 4 шт.
Упаковщик для дров Palax Packer Количество : 2 шт. HJ — Измельчитель древесины от трактора с гидравлической подачей Количество : 3 шт. Заточной станок — IRM Количество : 1 шт. Ленточная пилорама ZL- 60V Количество : 1 шт. W-Forrest — роторный мульчер диаметр до мм. Количество : 1 шт. Заказ запасных частей. Рубительные машины Измельчители древесины. Дровокольное оборудование Дровоколы и колуны.
Делаем своими руками
Стоимость рубительных машин наталкивает на мысль, что позволить себе их купить могут только частные предприниматели, которые делают теплые строительные блоки на продажу. Если оборудование нужно исключительно «для себя», дешевле выйдет самодельный щепорез для производства арболита. Когда схема работы понятна, собирать его нетрудно. Гораздо сложнее окажется отыскать подходящие материалы. Но кулибины из народа уже давно придумали, чем можно заменить те или иные специфические узлы.
1. Где взять детали?
Прежде чем браться за работу, необходимо построить или раздобыть чертежи станка для арболита со всеми нанесенными размерами. Если у вас нет возможности вытачивать детали машины в своем гараже, придется обращаться к специалистам, а они без сколько-нибудь грамотной технической документации вынуждены будут делать все «на глаз». В результате при таких оборотах и нагрузках ваш щепорез очень быстро разболтается, и производство арболита придется отложить. Часть узлов проще отыскать в пунктах приема чермета по смешной цене, чем заказывать их изготовление. Там можно будет найти вал и внешний шкив, а если для их сборки не окажется подходящей втулки, сделать ее в мастерской. Заодно попросите прорезать пазы на валу по вашим чертежам.
Точно так же решается проблема с диском для ножей. Он должен быть достаточно тяжелым и толстым (около 15 мм), чтобы, набрав обороты, уже мог работать как маховик, исключая заклинивание особо твердых кусков древесины. В крайнем случае подходящее изделие можно вырезать из стального листа, а затем сделать три-четыре широких паза под ножи, несколько монтажных и одно центральное посадочное отверстие с учетом шпоночного крепления. Диаметр диска – около 300-350 мм.
- Ножи для щепореза домашние умельцы советуют вырезать из автомобильных рессор. После этого в них необходимо просверлить по паре отверстий и прозенковать, чтобы потом утопить головки болтов.
- Молотки (била) лучше поискать готовые – здесь нужны абсолютно идентичные тяжелые и плоские пластины.
- Помучиться придется с ситом для щепы арболита. Понадобится металлический цилиндр подходящего диаметра, в котором необходимо пробить ячейки. Сделать это проще ступенчатым сверлом или сточенным на конус метчиком.
- Для защитного кожуха и подающего рукава пойдет листовое железо толщиной около 12 мм, которое нужно нарезать, а потом сварить из полученной «выкройки» корпус.
- Для формирования ребер жесткости могут понадобиться другие виды металлопроката: трубы, уголки или гладкая арматура.
При составлении чертежа станка для арболита и изготовлении кожуха важно выдерживать все размеры, чтобы режущий узел свободно помещался в корпусе и не цеплял стенки. Для этого диаметр изделия должен быть на 30-50 мм больше маховика

2. Этапы сборки щепореза для изготовления арболита.
В первую очередь собирается дробильный узел: на цапфы вала насаживаются опорные подшипники, режущий диск и молотки. После этого выполняется подготовка корпуса к монтажу строго по указанным в чертежах размерам. Вам нужно:
- Вырезать входы под рабочий вал, раструбы на подаче сырья и выпуске щепы для арболита.
- Просверлить нужное количество отверстий под болтовые соединения.
- Приварить под углом приемный патрон.
- Закрепить на кромке входного отверстия неподвижный контрнож, если это предусмотрено схемой, оставив зазор между изделием и режущим диском около 5 мм.
Все готово, чтобы собрать рабочий щепорез своими руками. Можно переходить к монтажу привода: устанавливать двигатель на раму, надевать шкивы выбранного диаметра и соединять автомобильными ремнями. Как вариант иногда применяют соосную схему и подключают валы через муфту. Но если нет возможности обеспечить совпадение осей, лучше не перегружать щепорез.




































