Преимущества и недостатки фрезера
Основное преимущество станка для фрезеровки электродрелью – не надо для выполнения единичных операций покупать дорогостоящий фрезер. На самодельном приспособлении легко сделать несколько пазов, обработать край полочки.
В электродрели сверло вставляется в патрон. При работе на самодельном фрезере надо пользоваться фрезой для дрели. В магазинах имеется большой выбор:
Все они имеют хвостовик и легко крепятся в патроне. Замена инструмента происходит быстро. Недостаток патрона в том, что он может открутиться во время работы, особенно при наличии вибрации инструмента. Надо постоянно проверять и затягивать крепление.
Перед тем, как сделать фрезер из дрели, следует определиться с объемом работы. Самодельный фрезер подходит для выполнения электродрелью домашних ремонтных работ, отдельных операций по обработке деревянных деталей. Фрезеровать дрелью длительное время и с большими нагрузками нельзя.
Основной недостаток фрезерного станка из дрели, малое число оборотов. При сверлении резание происходит по небольшой площади. Чистота при этом не нужна, древесина перерабатывается в стружку. На сверлильном инструменте максимальное вращение достигает 3000 об/мин. В то время как у самого легкого фрезера минимальное значение 4000 об/мин. Каждый специалист знает, что чистота обработки зависит от скорости вращения инструмента. Чем быстрее вращается фреза, тем красивее кромка и торец шпонки. После обработки на самодельном станке, обработанные места придется долго шкурить.
Двигатель на инструменте для сверловки значительно слабее фрезерного. Он рассчитан на непродолжительное включение. Долго работать на предельной мощности он не сможет. Во время фрезеровки дрелью ее надо постоянно выключать, давать ей остыть.
Самодельный станок подойдет для разовых работ. Для постоянной фрезеровки дерева лучше приобрети фрезер.
Если вы нашли ошибку, пожалуйста, выделите фрагмент текста и нажмите Ctrl+Enter.
Зачем он нужен?
Если коротко и формально, то для расширения функциональных возможностей. Отверстия можно делать с помощью обычной дрели, это факт. Но рассверливание, зенкеровка и развертывание под силу только сверлильным станкам. Разберемся с понятиями.
Рассверливание – увеличение диаметра отверстия. Зенкерование – специальная обработка отверстий до самой высокой точности и идеальной цилиндрической формы 4-го или 5-го класса. Если задаться целью получить отверстие еще более точное, например, 2-го или 3-го класса, понадобиться развертывание – «чистовая» обработка отверстий для получения идеальных размеров и форм.
Качественная обработка отверстий – далеко не все возможности сверлильного механизма, с его помощью можно шлифовать, фрезеровать и делать многое другое.
Настольный самодельный станок.
Безусловно, такого рода сверлильные аппараты имеются в продаже — любых размеров и назначений. Но, во-первых, все они стоят недешево. А во-вторых, сделать самодельный сверлильный станок намного интереснее и вполне укладывается в общую концепцию «мастера на все руки».
Что такое сверлильный станок
Сверлильный станок — приспособление, относящееся к сверлильной группе металлорежущих устройств. Применяя другие насадки, помимо круглых отверстий, на нем можно выполнять:
- полу чистовую механическую обработку деталей резанием;
- цилиндрические и конические отверстия;
- рассверливание имеющихся отверстий;
- вырезание дисков;
- нарезание внутренней резьбы;
- вырезание до требуемых размеров.
Сверлильные станки подразделяются на: работающие в вертикальных и горизонтальных плоскостях, одношпиндельные и многошпиндельные, координатно-расточные. Каждый тип имеет свои буквенные обозначения, по которым можно определить их группу и предназначение. Присадочные мини-агрегаты имеют более скромный принцип действия, достаточный для работы в условиях дома.
Вариант вертикального станка
Сверлильный станок из двигателя от стиральной машины
Предлагаем вашему вниманию еще один бюджетный вариант самодельной сверлилки. Только в данном случае вместо электродрели в качестве привода используется движок от стиралки.
Необходимые материалы:
- круглая металлическая труба;
- уголок стальной;
- полоса металла;
- электрический двигатель;
- газлифт (амортизатор);
- шкивы из фанеры;
- ремень для ременной передачи.
Сначала изготавливаем усиленную стойку. Обычно используют профильную трубу, но в данном случае она не подойдет. Вместо нее будем использовать круглую трубу и уголок.
Берем болгарку с отрезным диском, чтобы отрезать заготовки требуемой длины. Свариваем детали вместе, и зачищаем болгаркой. Далее привариваем сделанную усиленную стойку к станине.
Сразу хотим обратить ваше внимание на то, что основание должно быть достаточно тяжелым и устойчивым, чтобы выдержать вес электродвигателя и металлических деталей. Из отрезков уголка и полосы необходимо изготовить подвижный элемент конструкции, который будет опускаться и подниматься вдоль стойки
По сути, эта деталь представляет собой каретку с механическим механизмом подачи
Из отрезков уголка и полосы необходимо изготовить подвижный элемент конструкции, который будет опускаться и подниматься вдоль стойки. По сути, эта деталь представляет собой каретку с механическим механизмом подачи.
Дальше надо изготовить крепежную площадку, на которой будет размещаться мотор. Она приваривается к каретке, изготовленной ранее.
Теперь необходимо сделать шпиндель с патроном для фиксации сверла.
Для этого нам потребуется шпилька с резьбой на конце, которая будет выступать в качестве вала шпинделя. Надеваем на него подшипник, и фиксируем гайками.
Отрезаем кусок трубки, и насаживаем ее на шпильку. Устанавливаем сверху трубки второй подшипник.
Подготавливаем еще один кусок трубы. Разрезаем его вдоль по всей длине. Насаживаем на установленные подшипники. Продольный разрез необходимо наглухо заварить. Накручиваем патрон на вал.
Корпус шпинделя привариваем к металлической пластине, а саму пластину — к подвижной части.
Чтобы можно было опускать шпиндель, необходимо установить рычаг.
Вместо возвратной пружины автор решил установить амортизатор (газлифт).
Теперь делаем рабочий столик, на котором будут располагаться заготовки. Для этого сначала потребуется сделать небольшой ползун, который будет перемещаться по стойке.
К нему привариваем круглый столик (автор использует старый пильный диск для циркулярки). Дополнительно нужно сделать фиксатор.
Вытачиваем из дерева или фанеры два шкива. Один шкив устанавливаем на вал электродвигателя, второй — на вал шпинделя. Натягиваем ремень.
Все детали сверлильного станка надо покрасить, и потом собираем все до кучи. Устанавливаем кнопку включения/выключения.
Пошаговый процесс изготовления сверлильного станка с двигателем от стиральной машинки-автомат вы можете посмотреть на видео ниже.
В отличие от первого варианта, данная конструкция получилась довольно громоздкая. Но такой станок однозначно будет мощнее сверлильной стойки из дрели.
Бюджетный вариант – делаем станок из дрели за 300 рублей
А это необычный способ, и потратить нужно будет около 300 рублей. Так вы получите приспособление, которое сверлит под любым углом, от 45 до 90 градусов.
Итак, рассмотрим особенности такого устройства:
- Угол наклона. Для того, чтобы наклонять приспособление на требуемый угол сверления, будет достаточно раскрутить два зеленых рычажка сверху и по шкале выставить требуемый градус.
- Ограничение сверления. Если вы закрутите ручки ограничения на требуемой высоте, то можно будет ограничивать глубину, на которую сможет войти сверло.
- Фиксация. Приспособление можно зафиксировать в абсолютно любом положении на вертикальной плоскости. К примеру, это очень удобно, если меняешь сверла, чтобы дрель не опускалась вниз.
- Фиксирование на поверхности стола. Если можно зафиксировать подошву устройства на четыре самореза, к примеру, к столу, обязательно пользуйтесь такой возможностью. Такая функция будет очень удобной, если требуется просверлить много однотипных деталей.
- Подошва. Снизу есть углубление с шириной в 6 см, чтобы было удобнее устанавливать приспособление. В верхней части подошвы есть фаска с углом в 45 градусов с обеих сторон, и можно потребоваться сверление отверстия в ребре бруса квадратной формы.
В работе такое устройство простое и удобное. Это здорово поможет облегчить работы в мастерской, и при этом стоит сущие копейки.
Сверлильная конструкция из электродвигателя
Устройство станка с электродвигателем
Подобные станки, отлично проявляют себя в роли стационарных инструментов. Чтобы, разобраться, как сделать сверлильный станок из электродвигателя, придется рассмотреть чертежи и вникнуть в сферу электрики.
Для станка, потребуется двухфазный двигатель, что значительно упростит подключение и расширит область применения агрегата. Подключается такой двигатель к фазовым и нулевым проводам. Неправильное подключение, повлияет лишь на направление вращения. Если, вращение будет в обратную сторону, то провода меняются местами, и проблема решена.
Изготавливая стационарную конструкцию для сверления, потребуется:
- мощный каркас для двигателя, который будет легко перемещаться по вертикальной линии;
- столешница, где будет закреплен по строгой вертикальной линии штифт;
- в роли штифта, можно взять рулевую рейку от автомобиля. Она будет служить готовым передвигающим двигатель приспособлением;
- приделать колесико для перемещения и приварить к рейке держатель двигателя.
Что такое сверлильный станок и для чего он нужен
Просверлить тонкий материал не будет проблемой, достаточно взят дрель в руки, пару секунд и работа сделана. Но что делать, если вам очень нужно сделать точное и выверенное отверстие в толстом брусе? Ручные инструменты не подойдут, потому что есть большой риск испортить заготовку. Результатом такой работы будет смещение центра отверстия, появления рваного края и изменение геометрии. Избежать таких недочетов и сделать отверстие с определенными параметрами вам поможет именно сверлильный станок. За счет надежности фиксации детали, которую вы будете обрабатывать, а также центрованию инструмента получится обеспечить точность сверления, которой не добиться при работе дрелью.
Для того, чтобы сделать своими руками присадочный станок для мебели, потребуется доработать исходный инструмент. На изготовление не уйдет много времени и сил.
Не нужно забывать и про универсальность такого инструмента – при замене сверл вы сможете работать с абсолютно любыми материалами, и с мягкой древесиной, и с металлом, а также будет несложно просверлить листовую сталь. Вместо сверл можно использовать фрезу, и тогда устройство сможет заменить даже фрезерный станок с небольшой мощностью. Кроме того, сверлильный станок поможет облегчить труд мастеру. Поверьте, работать со стационарными устройствами намного проще, и не требуется удерживать на весу тяжелые инструменты.
Из чего он должен состоять
Элементарный агрегат можно сделать из обыкновенной дрели. Можно добавить к нему дополнительные устройства – например, фрезерный узел. Но каждый станок должен состоять из нескольких обязательных элементов: сверла, зенкера, развертки и метчика.
В промышленности встречаются множество типов сверлильных агрегатов – полуавтоматы, шпиндельные, вертикальные и другие. В быту чаще всего используется так называемый присадочный мини-агрегат со скромным набором выполняемых задач. Перед тем, как сделать самодельный сверлильный станок в домашних условиях, необходимо разобраться в функциях, основных элементах и общих принципах действия такого рода механизмов.
Вертикальный вариант станка. Вертикально-сверлильный станок.
Настольный сверлильный мини-станок.
Сверлильный станок из дрели.
Из чего состоит сверлильный станок? Общее устройство сверлильного станка.
По функциям самыми востребованными устройствами являются шпиндельные машины, главная функция которых – передача вращательного движения к обрабатываемым деталям. На втором месте по популярности – приспособления для горизонтального и радиального сверления. Также распространен аппарат для растачивания деталей. При таком функциональном разнообразии сверлильное оборудование в целом относят к аппаратам универсального пользования.
Но при этой свободе есть ряд обязательных составляющих, без которых не бывает сверлильных станков в принципе:
- станина;
- рулевая рейка;
- двигатель.
Область применения самодельных сверлильных станков
Мысли о создании сверлильного станка своими руками возникает у людей, любящих мастерить, но в то же время не занимающихся изготовлением каких-либо предметов на профессиональной основе как с использованием металла, так и прочих материалов (дерево, пластик и т.д.).
Это обусловлено тем, что самодельное оборудование не сможет в полной мере заменить промышленно выпускаемые аналоги в полной мере, как по функциональности, так и по производительности, а лишь облегчит выполнение несложных ремонтных и прочих работ.
Кроме этого, радиолюбители и люди, занимающиеся самостоятельным изготовлением печатных плат, также могут поставить перед собой подобную задачу, т.к. наличие сверлильного станка значительно упрощает их работу, а приобретение оборудования заводского производства нерентабельно.
Самодельная конструкция с использованием двигателя от стиральной машины
Станок из асинхронного двигателя от стиральной машины
Естественно, двигатель можно взять не только от стиральной машины. Просто данный пример – самый распространенный в быту. Этот вариант самодельного станка для сверления позволит выполнять самые разные отверстия с высокой точностью, вплоть до микроотверстий.
Основные принципы те же, что и с дрелью, но в этом случае понадобится стол мощнее: вибрация при работе такого аппарата будет намного сильнее. Подвижную часть аппарата лучше всего выполнять по предварительным чертежам.
Станок для сверления печатный плат.
Вес двигателя от холодильника значительно больше, чем вес дрели целиком, стол и стойка должны быть на порядок массивнее.
Для изготовления понадобятся следующие заготовки:
- шестерня;
- подшипники – две штуки;
- две трубки;
- стальное зажимное кольцо;
- специальный шестигранник для шкива.
Стальное кольцо соединяется с двумя подшипниками, шестигранником и металлической трубкой, образуя надежный узел. Главным механизмом в таком станке являются шестерни и трубка с надпилами. Движение трубки происходит за счет соединения зубьев шестерни с надпилами. Шестигранник своей осью должен вписываться в трубку.
Описанная схема сложная и далеко не всем по силам. Оптимальным способом будет изготовление агрегата с асинхронным двигателем полностью по аналогии с самодельными станками из дрели. Единственным негативным нюансом будет его значительная вибрация во время работы.
Оборудование для столярной мастерской
Каждый умелец столярного дела оборудует свою мастерскую необходимым для его задач оборудованием. Не всегда человек для бытового использования может позволить себе дорогие станки производственного изготовления. А эта ситуация является толчком к воплощению в жизнь самоделок на основе доступных деталей и инструментов.
Токарный станок по дереву
Токарный станок по дереву станет необходимым инструментом для домашних умельцев. Круглые болванки, ручки для дверей, шарообразные и конусообразные фрагменты для деревянных перил, ножки кресел и многое другое, — всё это можно изготовить с помощью самодельного токарного станка на базе шуруповерта..
Не стоит тратить деньги на заводское оборудование, если такой токарный станок без особых усилий можно сделать своими руками из старого шуруповерта, используя для этого минимум средств и материалов.
Вкратце можно описать один из таких вариантов «самодельного» станка. Делается короб (станина) прямоугольной формы из фанеры с тремя боковыми сторонами. В короткой стороне прорезается посадочное гнездо. В эту простенькую деревянную станину и устанавливается шуруповерт, кнопкой вверх.
Станина, в нашем случае прямоугольный деревянный короб, прикручивается к столу и прижимается струбциной. Это делается для того, чтобы надежно закрепить на рабочем столе станину вместе с инструментом.
В качестве опорной планки для резца используется деревянный брусок, который также прикручивается к столу струбциной.
В патрон шуруповерта зажимается отрезок прутка с резьбой, удобной для зацепа. На пруток насаживается деревянная заготовка (болванка). Включается шуруповерт и крутит деревянную заготовку. С помощью резца, опираясь на опорную планку, мастер вырезает нужную объемно-фигурную деталь.
Инструмент крайне необходим для мастеров, которые в своей работе используют деревянные детали и фрагменты.
Настольный сверлильный станок
Настольный сверлильный станок необходим многим умельцам в гаражах и мастерских для точного сверления отверстий в дереве, металле, пластике и т.д.
Талантливые мастера не тратят деньги на приобретение производственного оборудования. Нужно немного усилий и инженерных способностей, смекалки и желания. В результате можно получить добротную конструкцию настольного сверлильного станка из подручных материалов.
Основой инструмента может послужить редуктор от шуруповерта. Шток (стойку) станины мастера могут делать из различных материалов. Все идет в дело: металлические прутки, каретки от пишущих машинок, деревянные конструкции.
Механизм поднятия и опускания по вертикали редуктора также выполняется самыми разными способами. Не бывают лишними даже пружины от эспандера.
Для крепления редуктора к штоку станины делают самодельные хомуты из текстолита, или используют подходящие детали от других устройств или даже автомобилей.
Каждая конструкция индивидуальна и интересна по-своему. Главное, чтобы задача, которая ставится перед сверлильным станком – выполнялась с предельной точностью и на должном качественном уровне.
Не стоит использовать для станка разбитые и старые шуруповерты, так как люфт в патроне не позволяет добиться нужного диаметра отверстия.
Ручной фрезер: пошаговая инструкция
Если при работе с деревом у вас появилась задача вырезать канавку или окружность, не стоит идти и покупать дорогой фрезер. Проявив смекалку, можно легко решить эту задачу и превратить шуруповерт в ручной фрезер, создав своими руками нижнюю станину – конструкцию, которая бы удерживала вертикально инструмент. Производственные приставки для фрезирования на шуруповерты (дрели) есть в продаже, но приобретение их не всегда финансово оправдано.
Самый легкодоступный подручный материал для домашнего мастера – фанера и деревянные бруски. Вот из них мы и будем делать станину-приставку для фрезирования, выполняя пошагово инструкцию:
- Сделаем нижнюю часть станины. Возьмем фанеру толщиной 8 мм и вырежем из нее кольцо с внешним диаметром 10 см, с внутренним – 5 см. Для этой работы мы используем шуруповерт с «коронкой» по дереву.
- По бокам этого кольца прикрутим саморезами два деревянных бруска 4х2х10 см. Положим сделанную конструкцию брусками вверх. Это будет напоминать табуретку, поставленную ножками вверх.
- Сделаем верхнюю часть станины. Вырежем еще одно кольцо из фанеры внешним диаметром 9 см, а внутренним – приблизительно 4,5 см (под размер корпуса шуруповерта).
- Прикручиваем саморезами верхнюю часть станины к брускам с нижней частью.
- Одеваем приставку-станину на корпус шуруповерта. Он плотно садиться в круглое отверстие верхней части станины.
- Вставляем необходимую фрезу в патрон и отрегулируем вырез фрезы. Затягиваем патрон.
Преимущества конструкции
Собранные с использованием электрической дрели станки для сверления глубоких отверстий отличаются комплексом эксплуатационных преимуществ:
- оптимальная компактность и небольшой вес конструкции;
- возможность переноса и использования от аккумуляторов;
- получение качественных и точных по параметрам отверстий;
- быстрая сборка и демонтаж оборудования без потери времени;
- выполнение разных работ и обработка всех материалов.

Для ремонтных мероприятий и обслуживания дома станка будет достаточно, а вот для гаража и более масштабных процедур лучше выбрать другой тип устройства.

Особенности изготовления
Процедура, как сделать станок для сверления своими руками не сложная, но необходимо учитывать советы мастеров:
для небольшого сверлильного станка лучше выбирать асинхронный двигатель из старой стиральной машины; для установки достаточно мощного двигателя понадобится более прочное и максимально устойчивое основание; двигатель в процессе проектирования и сборки установки важно разместить ближе к стойке, что снизит уровень вибрации; соединение с помощью шестигранников должно быть максимально прочным и надежным для повышения износостойкости узла

Этот станок сложнее собрать даже при наличии доступной схемы, но его основным преимуществом остается усиленная мощность, что подходит для обработки разных поверхностей.

Распространенные ошибки
Если в процессе изготовления домашнего сверлильного станка будут допущены ошибки, все затраты по деньгам, времени и другим ресурсам будут впустую. Типичные ошибки изображены на рисунке:
На каждом рисунке указаны следующие типовые ошибки:

ошибки в процессе изготовления домашнего сверлильного станка
- Низкая точность и слабость рамки под воздействием штатной нагрузки;
- Колонна не должна быть полой внутри, иначе она не выдержит изгибающей нагрузки;
- Штанга не выдержит упор инструмента.
- Нет смысла сдваивать колонну поперечным способом. От этого устойчивость не увеличится.
- Отбойник (в данном случае пружина) из-за своих непропорциональных размеров не приглушает нагрузки и вибрации, а наоборот их усиливает.
- Несимметричная компоновка привода и шпинделя с одной стороны колонны будет только усиливать вибрации.
- Основная ошибка – отсутствие отбойника, как такового. Его нельзя эксплуатировать, так как это опасно для здоровья.
Электрическая дрель есть у многих хозяев, которые самостоятельно занимаются строительством и стройкой. Однако одного такого инструмента может оказаться недостаточно для операций, требующих высокой точности, сверления под прямым углом или сложных задач. Для выполнения этих целей создаются сверлильные станки – установки, которые можно изготовить в домашних условиях из подручных материалов и бытовой техники. В том, как сделать сверлильный станок из дрели, нет ничего сложного.
Доп.материалы(чертежи):

как сделать сверлильный станок из дрели своими руками чертежи

как сделать сверлильный станок из дрели своими руками чертежи

как сделать сверлильный станок из дрели своими руками чертежи
Summary
Article Name
Сверлильный станок из дрели своими руками — подробная инструкция, чертежи
Description
Лучше изготовить или купить ➜— Сверлильный станок своими руками ➜— Распространенные ошибки ➜— Чертежи ➜— Расположение основных конструктивных элементов.
Author
Сарычев Александр Викторович — судебный строительно-технический эксперт, кандидат технических наук
Publisher Name
Википедия строительного инструмента
Publisher Logo
« Предыдущая запись
Возможности станка
Самодельный станок с приводом и электродвигателем от стиралки – мощное и простое в эксплуатации устройство. За счет ременной передачи снижаются набираемые движком обороты, а скорость – увеличивается. В итоге инструмент быстро и легко сверлит даже толстую сталь сверлами любого диаметра.
Собрав и покрасив самоделку, можно приступать к ее тестированию. Запуск оборудования проходит следующим образом:
- вспоминаем технику безопасности (что сверлильный станок крайне опасен, поэтому надежно фиксируем его на рабочей поверхности и используем средства индивидуальной защиты);
- подключаем станок к электросети;
- устанавливаем сверло нужного сечения;
- кладем под сверло лист металла, который требуется просверлить;
- просверливаем необходимое количество отверстий.
Результат порадует мастера: крутящего момента будет достаточно для просверливания даже толстой стали. Более того, нет ограничений по используемым сверлам – можно устанавливать в патрон даже большие по диаметру «головки». Если набираемых электромотором оборотов мало, несложно усовершенствовать конструкцию: зафиксировать на ведомой оси еще один шкив поменьше. Станок ускорится и «возьмет» металл любой толщины.
Интересное:
- Как сделать станок из двигателя от стиральной машины
- Токарный станок по дереву из двигателя от стиральной машины
- Шлифовальный станок из мотора от стиральной машины
- Что можно сделать из старой стиральной машины
- Как сделать пресс для яблок из стиральной машины?
- Поменять ремень на стиральной машине Ariston
Комментарии читателей
Поделитесь своим мнением — оставьте комментарий
Станок из дрели
Удобный станок из дрели.
В состав конструкции обязательно входят:
- Передаточный механизм для сообщения нужного движения от двигателя всем рабочим элементам.
- Рабочие и управляющие элементы – например, прикрепленное к патрону сверло, которое связано с валом вращения и шпиндельным механизмом.
- Электрический двигатель с ременной передачей, через которую вращение передается к рабочим деталям. Кроме ременной имеется реечная передача, которая удерживает сверло в нужном направлении с помощью специальной ручки.
Ваш аппарат много выиграет, если вы расположите на нем специальную шкалу, которая поможет измерять длину глухих отверстий. Рабочим столом должна быть жесткая металлическая плита с мощным основанием.
Принцип работы сверлильного станка из дрели.
Удивительно, но такие самодельные сверлильные станки из дрели при всей своей простоте способны выполнять самый широкий набор функций. Из всех домашних аппаратов, выполненных из дрели, самым простым является присадочный агрегат без рулевой рейки. При этой модификации особенно важен тяжелый стол: он будет смягчать вибрацию во время рабочего процесса.
Металлический стол под станок можно соорудить из пластины размером 500 мм х 300 мм и толщиной не менее 5 мм. Размеры металлических уголков для стойки к дрели – 50 х 50 мм. Соединять металлические детали при помощи сварки. Для этого соединить стойку с поверхностью металлического стола под прямым углом.
Дрель на стойке закрепить хомутиками. К столу прикрепить тиски. Швы зачистить металлической же щеткой. Все элементы станка нужно выставить по уровню. Механизм выполняется в виде длинной гайки с болтами
Четыре гайки привариваются к каждому уголку основы с последующим закручиванием болтов.
Смазка и финальная покраска – не менее важное дело, которым не стоит пренебрегать. Прежде всего, это защита станка от коррозии. Смазку делать любой технической смазкой
Краска может быть любой
Смазку делать любой технической смазкой. Краска может быть любой.
Порядок работы
Ниже представлена инструкция, как сделать точечную сварку, используя ненужную в хозяйстве микроволновку:
Разобрать старую СВЧ-печку. Вытащить трансформаторное устройство на 800 А. Заняться разбором блока питания компьютера. Вам потребуется лишь стальной корпус и разъём питания 220 вольт. В дальнейшем он будет использоваться для размещения «начинки» сварочного агрегата.
Обратите внимание!
Электросамокат своими руками — мастер-класс с пошаговыми инструкциями работы своими руками. Советы и простые схемы для начинающих + лучшие фото-обзоры
- Кресло-качалка своими руками: ТОП-120 фото лучших вариантов изготовления. Мастер-класс по созданию кресла-качалки в домашних условиях
- Коптильня из газового баллона — лучший мастер-класс по изготовлению самодельной коптильни с пошаговыми фото-схемами для начинающих
Поместить внутрь корпуса трансформатор, плату таймера и переходник питания. Примерить и отметить места отверстий – потом их надо будет проделать при помощи дрели.
Удалить вторичную обмотку трансформатора, заменив силовым кабелем. При этом демонтировать трансформаторные пластины не потребуется. Достаточно срезать обмотку вначале с одного края, затем с другого, используя стамеску и молоток. После этого останется убрать остатки проволоки сверлом.
Сделать новые обмотки из силового кабеля. Поставить модифицированный трансформатор в корпус. В области нахождения решётки просверлить 2 отверстия. Продеть через них выводы катушки. Проделать ещё отверстия, теперь в днище корпуса, для установки транса.
Подсоединить к передней панели механизм таймера. Продеть светодиод, выпаянный из платы и удлинённый проводами, в сделанное ранее отверстие.
Стальными уголками прикрепить рейку из дерева к корпусу сварочного аппарата.
Обратите внимание!
- Компрессор своими руками: ТОП-130 фото-обзоров готовых компрессоров. Пошаговая инструкция + схемы и чертежи
Ветрогенератор своими руками: ТОП-170 фото-обзоров готовых приборов. Подробная инструкция по самостоятельному изготовлению для начинающих
Теннисный стол своими руками: ТОП-150 фото лучших идей изготовления. Мастер-класс по созданию теннисного стола в домашних условиях
Достать с клеммной колодки клеммники, надеть их на контакты кабеля, которые требуется перед этим зачистить, и прикрутить на шурупы к рейке. Оснастить рейку кнопкой пуска, предварительно проделав под неё отверстие.
Медную проволоку использовать для создания электродов. Не забыть обточить концы. Закрепить сделанные из меди электроды в клеммниках.
Дополнить конструкцию пружиной для возврата контактов устройства на первоначальную позицию. С данной целью требуется прикрутить к верху корпуса ещё одну рейку из дерева. Вот и всё. Работа над созданием самодельного агрегата точечной сварки завершена.
Получившийся инструмент имеет довольно высокую мощность. Поэтому, дабы избежать прожигания отверстий в тонких металлических листах, рекомендуется устанавливать меньшие временные параметры на таймере. Кроме того, компактные размеры такой сварки позволяют разместить её даже в малогабаритной студии.
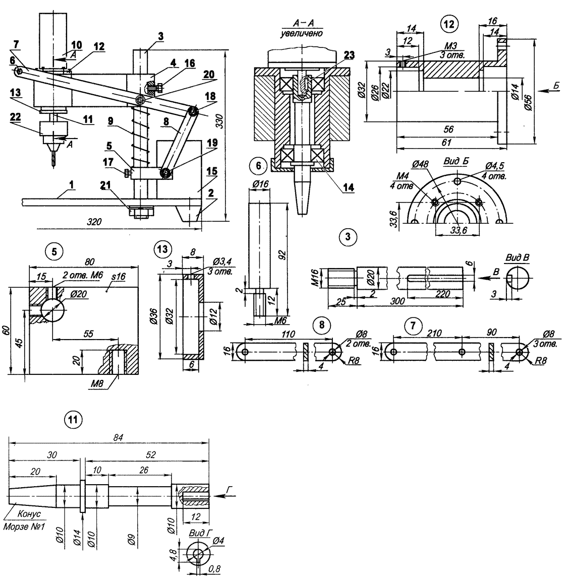
Детали самодельного сверлильного станка
Из чертежей видно устройство самодельного сверлильного станка. Уголок (7) со шпильками (8) болтом М8 (16) крепится к подъемному механизму фотоувеличителя (17) (вместо снятых деталей фотоувеличителя).
Корпус (10) вставляется в кронштейн (6) и фиксируется гайкой (5). Затем в корпус с обеих сторон вставляются подшипники (11)
Обратите внимание, что примененные подшипники имеют защитную шайбу. Устанавливать их в корпус следует шайбой наружу
Далее корпус нанизывается на вал (1), затем на вал одевается втулка (4) и оба шкива (2, 3). Все это затягивается гайкой М8 (13) до исчезновения люфта в подшипниках, при этом вращение вала должно быть легким, без рывков и перевалов. Чрезмерная, как и слабая затяжка нежелательны.
Собранная конструкция прикручивается болтом М8 (16) к уголку (7) под необходимым углом путем совмещения пары шпилек уголка (7) и соответствующей пары отверстий в кронштейне (6).
На вал двигателя надевается шкив (19). К корпусу двигателя на четырех винтах МЗ крепится скоба (9), которая, в свою очередь, закреплена винтом М6 (15) к кронштейну (6).
Прорезь в скобе служит для удобства натяжения ремня.
Двигатель и реостат соединяются как в швейной машине. Параллельно реостату подсоединяется выключатель, который позволяет включить станок, шунтируя реостат.
Для повышения прочности конструкции к внутренней стороне крышки чемоданчика прикручивают на винтах М5 опору (18) из стального листа.
Сверлильный станок готов к работе.
Разбирая станок для хранения, необходимо лишь открутить кронштейн от уголка, снять скобу с двигателем и вынуть штатив из гнезда в крышке.
Все детали прекрасно умещаются в чемоданчике. Применение более мощного двигателя (90 Вт, 6000 об/мин) позволит использовать сверла диаметром до 9 мм. При этом на валу вместо резьбы М10х1 протачивают конус под соответствующий патрон.
Примечание: При изготовлении деталей сверлильного станка особое внимание следует уделить корпусу и валу, т.к. от качества их изготовления будет зависеть амплитуда биения вала станка при сверлении и фрезеровке
Чтобы максимально уменьшить биение, необходимо установить подшипники с минимально возможным зазором или небольшим натягом, а при обработке посадочных поверхностей корпуса и вала под подшипники должна быть обеспечена их соосность.
Ременную передачу в целях безопасности рекомендуем закрыть съемным защитным кожухом.
Переносной механизм из ручной дрели
Очень удобно, пользоваться сверлильным станком из ручной дрели в тех случаях, когда нет возможности подключить электрическую дрель к источнику питания. Для изготовления станка, можно использовать деревянный каркас:
- основание выполняется из доски 30х20 см и толщиной 40 мм;
- прикрепляется вертикальная дощечка строго под углом в 90 оС;
- вертикальная стенка также должна быть из толстой доски, минимум 30 мм, а закрепить ее надежно помогут металлические уголки и шурупы.
На вертикальной стенке крепятся металлические полозья (их можно взять со старой мебели или купить в магазине), к ним прикрепляется держатель ручной дрели. Таким образом, дрель будет свободно ходить вниз и вверх, однако, этого мало. Чтобы дрель не падала под своим весом, к держателю дрели и основанию станка крепится пружина нужной упругости.
Не стоит забывать и про ручку, которую понадобится крутить. Ее движению ничто не должно препятствовать. В итоге должен получиться агрегат, который приводится в движение вручную и не требующий питания.





































