Как сделать лебедку и пилораму из бензопилы своими руками
Самоделки из «Урала» часто помогают и в строительстве. Так, при возведении зданий из цельного леса приходится распускать бревна на брус. Пилорама из бензопилы «Урал» дает возможность выполнить это действие максимально быстро, аккуратно, сохраняя точность реза. Главное преимущество – отсутствие необходимости выполнять какие-либо сложные переделки. Приспособление просто требуется надежно закрепить в самодельной раме, которая может быть изготовлена из металлических уголков или профильных труб. Бревно для обработки затем уже укладывается на подготовленные направляющие.

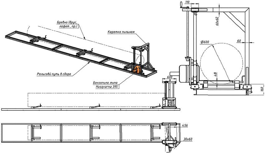
Схема изготовления пилорамы из бензопилы своими руками.
Создавать чертежи пилорамы из бензопилы своими руками не придется, потому как в сети доступно большое количество идей, подходящих даже для человека без опыта.
Безопасность использования конструкции обеспечивается тем, что не нужно самостоятельно передвигать бревно. Для этой цели служит каретка с пилой, которая, в зависимости от толщины бревна, закрепляется на необходимой высоте. После включения рама перемещается точно, а срез остается аккуратным и получается ровным. Можно эксплуатировать устройство не только для цельного бруса, но и для распиловки доски, с целью заготовки дров.
На заметку! Нужно быть готовым к тому, что в процессе работы будет образовываться большое количество опилок, так как для распиловки используется цепь значительной толщины.
Самодельная лебедка также станет хорошим помощником при строительстве, потому как с ее помощью получится легко поднимать грузы на высоту, перемещать спиленное дерево. Кроме того, применяя лебедку, удастся вытащить застрявшую машину или вытянуть из воды на берег катер. Эффективность работы будет зависеть от передаточного числа редуктора, в некоторых моделях показатель может достигать 1,5 т.

Пилорама из бензопилы позволит легко и быстро превратить бревна в брус.
Чтобы прибором было удобно пользоваться, потребуется выполнить прочную раму, используя сварочные работы. На раме следует прочно закрепить мотор, редуктор и барабан с системой торможения. Для фиксации рамы на корпусе следует предусмотреть отверстия и проушины, через которые можно будет установить прибор на любую поверхность.
Пилорама из бензопилы своими руками: видеоинструкция и чертежи

Пилорама из бензопилы — вариант №1
Для изготовления конструкции кроме бензопилы понадобятся:
- два швеллера длиной в 8 метров и высотой в 140-180 миллиметров;
- две рельсы;
- уголки 50х100 мм и 40х40 мм;
- отрезки водопроводной трубы в 25 см в качестве стяжек;
- плита из стали толщиной в 4-6 см и длиной в 60 см;
- подвижные шланги;
- трубы с диаметром в 35-40 мм.
Изготовление своими руками пилорамы следует начинать со сборки основания из перевернутых подошвой вверх рельс и уголков 50х100 мм. Устанавливаться они должны строго параллельно полу, поэтому нужно воспользоваться строительным уровнем.
Далее выполняются следующие работы:
- По длине основания, согласно чертежу, сверлятся отверстия с шагом в 1-1,5 метра и диаметром в 14-16 мм.
- Затем по количеству отверстий берутся стяжки, которые соединяются при помощи болтов.
- Из металлических угольников изготавливаются стойки и на них ставится основа. Расстояние между крайними стойками и основой должно быть около 100 см.
- Чтобы конструкция была более жесткой, раскосы между стойками можно приварить.
снизу стальной плиты приваривается уголок
На последнем этапе работ по изготовлению самодельной пилорамы необходимо сделать конструкцию для фиксации бревен. Для этого подвижные шланги и трубы следует расположить на необходимой высоте и закрепить их.
Первый вариант самодельной пилорамы из бензопилы готов. Существует еще один способ изготовления своими руками агрегата для обработки древесины. Инструменты и чертеж для него понадобятся те же, однако, сама конструкция более доработана.
https://youtube.com/watch?v=KxtDdf-N3pY
Пилорама из бензопилы своими руками – вариант №2

- Пилы с приводом.
- Механизма для регулирования толщины изготавливаемой доски.
- Механизма для передвижения пильной части конструкции.
- Устройства для фиксации бревен.
Так как бензопила с рабочим двигателем и режущими зубьями в уже есть в наличии, необходимо будет сделать своими руками только оба механизма и устройство для фиксации бревен.
Механизм для регулирования толщины досок.
Распиливаются бревна посредством поднимания или опускания основания, которое должно быть приварено к пластине с помощью четырех гаек с согнутыми краями. Вверху этого устройства необходимо установить контргайки, которые нужно затягивать после того, как агрегат будет настроен на нужную толщину обрабатываемого материала.
Механизм для передвижения пилы.
Пила в конструкции перемещается вдоль рамы по направляющим уголкам, расстояние между которыми должно быть в 50 см. К стойкам необходимо приварить два ролика или подшипника на 20 мм. Нижний ролик должен удерживать пилораму от подъема, а верхний следует опереть на направляющий уголок.
Устройство для фиксации бревна.
На таком агрегате бревна крепятся с помощью двух гребней – неподвижного и перемещающегося посредством винта. После того как материал для обработки будет установлен, перемещающийся гребень винтами закрепляется в неподвижном состоянии. Теперь можно начинать смело эксплуатировать самодельную пилораму, выполненную из бензопилы.
Устройство самоката из бензопилы

С помощью двигателя бензопилы можно собрать не только приспособления для ручного пользования, но и полноценное транспортное средство, функционирующее на горючем топливе. Одна из таких конструкций – самодельный самокат с мотором от бензопилы.
Для создания этого устройства понадобиться обычный самокат, оборудованный системой ручного тормоза и надувными колесами. Двигатель от пилы необходимо закрепить на задней платформе самоката и удостовериться, что линия звезд мотора и заднего колеса совпадает.
Чтобы контролировать уровень подачи энергии на таком самокат, ручной акселератор требуется соединить с проводами, отвечающими за включение и выключение мотора бензопилы. В случае возникновения сложностей допускается монтаж специальной педали.
Это важно! Езда на подобном транспортном средстве требует соблюдения определенных мер безопасности, поэтому открытые участки двигатели, звездочки и другие детали самоката необходимо закрыть ограждениями во избежание получения травм и порчи одежды. Велосипед с двигателем от бензопилы, так называемый мопед
Принцип применения двигателя тот же что и у самоката
Велосипед с двигателем от бензопилы, так называемый мопед. Принцип применения двигателя тот же что и у самоката.
Приступаем к креплению бура
Конечно, как и мотор, дрель должна быть жестко закреплена. Но это сделать намного проще. Чтобы исправить это, можно взять шланг и таким шлангом соединить редуктор и дрель, а затем зафиксировать эти соединения. Большим преимуществом этой конструкции является то, что сверло можно заменить при необходимости (например, вам может потребоваться просверлить отверстие другого размера).
Также можно попробовать сделать «продвинутое» сверло, в котором будет возможность не только горизонтального бурения, но и вертикального. Для этого потребуется еще одна рама (металлическая труба) с приваренным отрезком вертикальной трубы.
К корпусу, который был изготовлен в первую очередь, необходимо приварить побольше металлических колец. Эти кольца должны без зазоров входить в подседельную трубу. Теперь вся обновленная конструкция размещается на бурильной трубе. Можно начинать сверление.
Такая «продвинутая» дрель имеет два преимущества: во-первых, становится возможным вертикальное бурение, а во-вторых, бурение становится намного удобнее. Однако есть и два недостатка: во-первых, она становится тяжелее, а во-вторых, при очень глубоком сверлении бурильная труба будет мешать.
Второй минус можно устранить, сделав направляющую трубку сверла из деталей, выступающих друг от друга. Разумеется, между этими частями не должно быть зазора, но они должны переходить друг в друга. Да и конструкция станет еще тяжелее.
Вы также можете сделать возможным пробивать под определенным углом. Но необходимость в таком сверлении возникает настолько редко, что об этой проблеме лучше специально не задумываться.










Изготовление культиватора из бензопилы «Урал»

Покупать мотокультиватор с целью обработки небольших придомовых участков в большинстве случаев неоправданно. Ведь помимо него, так или иначе, придется приобретать навесной инвентарь. Не нужно также забывать, что некоторые магазинные варианты довольно требовательны к маслам и топливу. В таком случае можно изготовить мотокультиватор из бензопилы своими руками. Самодельные агрегаты, также как и их дорогостоящие аналоги, состоят из таких элементов:
- Двигателя;
- Топливного бака;
- Рамы;
- Промежуточного вала.
Читать также: Физические свойства углеродистых сталей
Все эти составляющие, кроме рамы, можно взять у старой бензопилы. Перед тем, как приступить к изготовлению самоделки, необходимо подготовить приблизительный чертеж.
Он послужит своеобразным планом, по которому вы сможете сориентироваться в процессе изготовления. Дальнейший алгоритм создания выглядит следующим образом:

- Для начала раскрутите старую бензопилу и демонтируйте мотор, редуктор и топливный бак;
- После этого начните сваривать раму. Для ее изготовления используйте металлические уголки, сечением 32×32 мм. Конструкция должна быть достаточно прочной, и легко выдерживать вибрацию и дополнительный груз;
- К верхним поперечным уголкам рамы прикрепите мотор;
- Под двигателем на специальных кронштейнах установите и закрепите топливный бак. Нижнюю его часть потребуется защитить металлической пластиной;
- Опоры промежуточного вала следует закрепить на вертикальных передних стойках рамы;
- Для закрепления подшипников ходового вала, соедините опоры продольными уголками;
- Далее приступите к созданию органа управления – для этого подойдет металлическая поперечная перекладина, длиной 30 см.;
- При необходимости прикрепите к нижней поперечине рамы колеса – их можно «одолжить» у старого авто или купить два небольших колеса для хозяйственной тачки.
После сборки необходимо протестировать агрегат. Для этого заведите двигатель и пройдитесь с культиватором по грядке. Наверняка, вы заметите, что конструкцию требуется утяжелить. Для этого можно взять любой груз и расположить его в передней части каркаса. Обязательно закрепите утяжелитель, иначе он может сместиться под воздействием вибрации и повредить мотор или промежуточный вал.
Культиваторы, изготовленные на основе пилы «Урал», не будут иметь достаточной мощности для применения габаритного навесного оборудования. Они предназначаются для вспашки грунта, однако, их все же можно оборудовать сцепным устройством. Для этого нужно купить сцепку в любом магазине сельхозтехники и оборудовать ею конструкцию. Сконструированные таким образом культиваторы могут эксплуатироваться в паре с небольшой самодельной бороной или плугом. Однако нужно помнить, что при работе с такого рода оборудованием необходимо делать небольшие перерывы.
Насадка-лебедка на бензопилу – особенности установки и эксплуатации
Некоторые известные бренды выпускают к своим бензопилам уже готовые приспособления, технологически изготовленные в виде небольших переносных насадок. К этим производителям относятся компании Stihl, Husqvarna, Patriot, Champion и AL-KO.
Насадка-лебедка для бензопилы выделяется простотой в самостоятельной установке и снятии. Для монтажа оборудования потребуется предварительно демонтировать режущие органы бензопилы. При этом элементы муфты сцепления инструмента должны остаться на месте. Далее нужно установить лебедку на вал, надев на него сначала штатный редуктор, а после него – все остальные элементы насадки.
Несмотря на сравнительно небольшие размеры, фирменная лебедка на бензопилу выделяется достаточно высокими тяговыми характеристиками. Ей под силу непродолжительная буксировка транспортных средств весом до 1 т, а также постепенное извлечение застрявшего объекта массой 1,2–1,5 т.
Готовые насадки в виде лебедок не нуждаются в регулярном обслуживании и частом ремонте. Все, что нужно оператору – это следить за состоянием и намоткой буксировочного троса, а также проверять уровень фиксации штатных болтовых соединений оборудования.
Другие приспособления
Можно легко и быстро из пилы сделать болгарку, которая сможет работать автономно, отличаться высокой мощностью. Для такого перевоплощения необходимо в магазине строительных материалов купить необходимые насадки, которые помогут совершить преобразования одного инструмента в другой. Чтобы понизить вероятность поломки диска, пилу можно оборудовать защитным кожухом, а количество оборотов понизить скоростным редуктором.

Неплохое решение – изготовить из пилы переносной генераторный агрегат. Он пригодится на дачном участке, где нет электроэнергии. Мощности в двенадцать вольт будет достаточно, чтобы получить освещение, как от нормального фонарика.
Подсоединив инвентор, можно преобразовать энергию в 220 вольт.
К числу полезных самоделок можно добавить мотор к надувной лодке, мотоцикл (для него понадобится не одна пила), легкий летательный аппарат.
Лебедка
Механизм предназначен для горизонтального перемещения или подъема грузов на высоту. Не зависит от наличия электроэнергии, может использоваться на природе, в туристических походах.
Обязательное условие при этом — мощность двигателя лебедки из бензопилы своими руками не должна быть меньше 2,5 кВт.
Важным элементом устройства является барабан — его изготавливают самостоятельно или используют от ручной лебедки. Кроме того, понадобится:
- редуктор для уменьшения оборотов мотопилы;
- металлические трубы или профильный прокат, рычаг, кулачковые зажимы, хомуты.
Порядок изготовления лебедки:
- Из труб изготавливают жесткую раму. Используют сварку.
- Крепят к ней мотор бензопилы. К нему хомутами подсоединяют редуктор, а к выходному валу последнего — барабан.
- Устанавливают рычаг, оборудованный кулачковыми зажимами, связанными с валом барабана. Этот элемент управления позволяет управлять рабочим процессом: при перемещении рычага в одну сторону включается вращение барабана, в другую — происходит его остановка.
- Изготавливают якорь, которым лебедка будет закрепляться в почве или цепляться за какой-либо неподвижный предмет. Используют заостренные уголки, которые приваривают или присоединяют шарнирами к раме.
- Наматывают на барабан трос, свободный конец которого снабжают крюком. Его применяют для захвата, присоединения к грузу, который нужно перемещать.
Устройство существует в 2 вариантах. Буры из бензопилы своими руками делают для земли или для сверления льда. В первом случае приспособление облегчает устройство глубоких ям под столбы, опоры забора, иных конструкций. Во втором — помогает рыбакам зимой сверлить лунки. Отличаются они используемым буром.
Конструкция бензобура предполагает соединение в одно целое готового бура и двигателя мотопилы. Чтобы сделать мотобур из бензопилы, у последней должен быть мотор большой мощности — не менее 2 л. с. Кроме того, понадобятся:
- Редуктор. Это важный элемент устройства. Он необходим для снижения оборотов мотора пилы, т. к. при быстром вращении бура может не хватить мощности двигателя, да и работать при таких условиях трудно.
- Болгарка.
- Металлическая труба.
- Дрель.
- Сварочный аппарат.
Последовательность сборки бура:
- Из металлической трубы изготавливают две прямоугольные рамки. Размер одной — 45х35 см, второй — 10х10 см.
- Соединяют рамки между собой, размещая параллельно одна другой на удалении 30 см. Делают это одинаковыми кусками металлической трубы, сваривая ими смежные углы рамок.
- Внутри полученной усеченной пирамиды к меньшей рамке крепят редуктор.
- По схеме сбора бура сверху устанавливают мотор, соединяя его с редуктором коротким валом (изготавливают предварительно). Рукоятку, которой регулируется подача топлива, выводят на верхнюю большую рамку. На ней же располагают систему аварийного отключения двигателя.
- Подсоединяют, используя кусок трубы, к выходному валу редуктора бур. Детали соединяют шпонками или шпильками.
Порядок действий
После того как подобран подходящий чертеж (схема расположения комплектующих), найдены необходимые инструменты и демонтирована пила «Дружба», можно приступить к сборке. Начинать следует с рамы, поскольку на нее будут крепиться все элементы двигательного блока. Завершает процесс – сборка ходовой части, а так же дополнительных блоков: при желании – фар, КПП и сцепления, если чертеж более сложен и их предполагает. Для первого раза лучше всего выбрать чертеж попроще.
Сборка рамы
Первый этап предполагает следующие действия:
- трубу изгибаем так, чтобы она приняла форму 2-х лонжеронов с направленными вверх краями;
- сзади приваривается руль (проще всего приварить две рукояти, но при наличии можно воспользоваться готовым рулевым от мотоцикла);
- конструкцию рекомендуется усилить поперечинами из той же трубы;
- из металлического листа вырезаем «полку» под аккумулятор, которую привариваем к задним изгибам лонжеронов.
Получается отдаленное подобие саней. Для более тяжелых конструкций с более мощными силовыми агрегатами рама может быть выполнена в форме куба или же по подобию тракторной для 4-колесных самоделок.

Сборка двигательного блока
Самый сложный этап – монтирование комплектующих. Прежде чем приступать к нему, необходимо разметить на раме места, к которым будут крепиться детали. Принцип следующий:
- сверху на поперечины крепится мотор с редуктором;
- под мотором устанавливается топливный бак (под него следует приварить отдельную опору), на специальную площадку крепится аккумулятор;
- чтобы выхлопные газы не попадали в управляющего агрегатом, можно сделать выхлопную трубу из металлической трубки 7 см. диаметром длиной до 25 см.
Это базовый вариант без КПП, которая устанавливается по желанию. Более детально разобраться в сборке помогут чертежи. По большому счету, детали «Дружбы» просто перестанавливаются местами. Навеска подключается к выходному валу бензопилы.
Сборка ходовой части
Есть минимум два варианта: можно использовать готовую полуось от автомобиля или же сделать мотоблок-самоделку движимым физической силой (пригодится «ходовая часть» старой тележки или тачки, что значительно уменьшит вес и габариты, ведь автомобильная полуось потребует использования автошин). В первом случае придется организовать привод от мотора к полуоси, что достаточно не просто, поэтому приварить к раме «ходовую» тачки – более понятный вариант.
Разобраться в том, как из бензопилы сделать мотоблок, не трудно, если понимать общий принцип работы обоих агрегатов. Кроме «Дружбы» для мотоблока подходят так же пилы «Урал» и «Тайга». Решаясь на эксперимент, следует понимать, что самоделка будет иметь ограниченный функционал и маленькую мощность, позволяющую обрабатывать максимум 20 соток.
Если вы нашли ошибку, пожалуйста, выделите фрагмент текста и нажмите Ctrl+Enter.
Мотоблок – эффективный помощник в процессах обработки земли, а также дальнейшего ухода за огородом и садом. Самым простым способом получения данного устройства это, конечно же, его покупка. Однако есть вариант изготовления его, используя двигатель от бензопилы, в частности от советской «Дружбы». Благодаря мощному двигателю, несложной конструкции и общей неприхотливости он хорошо подходит для этой роли.

Установка двигателя
Затем нужно оборудовать агрегат двигателем. Для этого снимают мотор с бензопилы Дружба или Урал. Изготавливают из стального листа и уголка основание для двигателя. С двигателя от бензопилы надо убрать лишние детали (рукоятку, бак, цепь). Трудоемкой работой считают переделку звездочки.

За основу берут звездочку бензопилы, убирают зубцы, так придают ей произвольную форму. Выполняют 2 отверстия в корпусе системы охлаждения для монтажа к раме двигателя. Скорость картинга с двигателем от бензопилы будет невысокой.
Чтобы фиксировать двигатель, надо монтировать металлическую пластину к задней стороне рамы при помощи сварки. Надо установить силовой агрегат на пластину так, чтобы его шкив совпал со шкивом оси. После делают разметку, где отмечают отверстия для креплений. Соединение шкива с осью надо делать до того, как будете ставить ось во втулку. Для крепления шкива используют установочный винт.
В качестве бака для бензина применяют расширительный бак от старого автомобиля.
Затем соединяют все узлы и детали при помощи крепежей и сварки. После этого осуществляют проверку надежности креплений всех деталей и узлов и проверяют готовую конструкцию на прочность.
Затем проводят испытания самодельной техники при движении по дорожному полотну и неровной поверхности грунта, то есть в тех условиях, где предполагается эксплуатировать агрегат. Таким образом можно изготовить и использовать для движения и перевозки небольшого груза картинг с мотором от бензиновой пилы.
Как сделать мопед из бензопилы или велосипед с мотором
Самодельный мопед из бензопилы вряд ли сравнится с промышленным вариантом прибора, но в качестве своеобразной взрослой игрушки он вполне сгодится. По большому счету приспособление представляет собой не мопед, а велосипед с двигателем от бензопилы. Это связано с тем, что чаще всего применяется именно старая рама от этого транспортного средства.

Мопед с применением бензопилы сможет разгоняться до 30 км/ч.
На заметку! Более продвинутые умельцы берут не готовую раму от старого велосипеда, а самостоятельно изготавливают для этой цели сварную конструкцию из металлических труб или квадратного профиля. А вот основные узлы, включая подшипники, предпочитают использовать заводские.
Перед тем как поставить двигатель от бензопилы на велосипед, следует позаботиться о наличии деталей, таких как:
- рама;
- двигатель с бензобаком;
- редуктор с передаточным соотношением 18:1;
- амортизаторы;
- тормоза.
Любой двигатель на велосипед от бензопилы должен дополняться редуктором, чтобы была возможность регулировать вращение колес. Иногда вместо редуктора применяются зубчатые пары, соединенные между собой цепью от велосипеда. Если за основу брать горный вариант велосипеда, то здесь в большей степени подойдет редуктор с передаточным числом 1:15 или 1:20, дополненный вариатором. Главное преимущество горного велосипеда с мотором от бензопилы состоит в том, что в отличие от обычного устройства его получится разогнать до 30 км/ч.
Другим простым в исполнении транспортным средством считается карт из бензопилы, напоминающий упрощенную модель автомобиля, которая применяется в основном для кольцевых гонок. Прибор лишен цельного корпуса, в нем нет амортизаторов. Минимальное количество деталей позволяет облегчить конструкцию и обеспечить ему большую скорость передвижения.

Для велосипеда понадобиться не только двигатель от бензопилы, но также и редуктор.
Рама чаще всего варится самостоятельно из металлопрофиля, а в качестве донора колес используются старые тележки. В качестве привода на заднюю ось применяют велосипедную цепь, а также понадобится рулевая трапеция. Чтобы собрать корпус, потребуется использование сварочного аппарата. Некоторые считают карт, выполненный своими руками, детским автомобилем с бензиновым двигателем, но нужно учитывать, что транспортное средство способно развивать приличную скорость.
Устройство бензопилы Дружба
Бензопилы советской марки Дружба начали выпускаться в 1955 году. Они характеризовались улучшенной, как для того времени, конструкцией. Преимущества заводского устройства и главные отличия инструментов Дружба от тогдашних аналогов заключались в высокой плотности установленных деталей и свободному доступу к главным из них. Это значительно упрощало самостоятельный ремонт техники бренда Дружба и позволяло устанавливать новые запчасти даже в полевых условиях.
Основа штатной конструкции бензопил Дружба заключалась в тяговитом и оборотистом двигателе. Мощность силового агрегата зависела от модификации бензоинструмента. Устаревшие модели, как бензопила Дружба-2 , комплектовались двигателями с большим объемом цилиндра, но с меньшей мощностью. В отличие от них современные модификации оснащены экономичными ДВС с меньшими объемами встроенных цилиндров, но с более высокими мощностными параметрами.
В устройстве старых модификаций не предусматривались некоторые функции, которыми оснащены практически все современные модели. К примеру, бензопила Дружба-4 не укомплектована антивибрационной системой, механизмом облегченного запуска или узлом газораспределения. Тем не менее даже эти модели сегодня активно используются опытными садоводами и вальщиками.

Привод старых модификаций марки Дружба включал редуктор , который играл основную роль в работе всего механизма. Элемент требовал постоянной смазки, которая облегчала его работу и не допускала перегрева при работе под повышенными нагрузками. В комплектацию новых бензопил Дружба редуктор не входит. Вместо него в заводское оснащение бензоинструментов включено зажигание, состоящее из барабана, возвратной пружины и 6-зубой ведущей звезды.
Для обработки древесины все модификации марки Дружба комплектуются режущими органами, состоящими из увеличенной шины и заостренной цепи. Они адаптированы для эксплуатации в сложных погодных условиях, поэтому могут выдерживать интенсивный нагрев и охлаждение без риска деформации и потери режущих свойств. Смазка гарнитуры в устаревших модификациях марки Дружба производилась вручную – чаще всего для этого использовалось отработанное масло. Производить эту процедуру требовалось примерно 1 раз на каждый час активной работы. В современных бензопилах этого бренда предусмотрена автоматическая смазка шины и цепи. Для этого в заводское устройство каждой модели включена масляная помпа.

Бензопилы производства марки Дружба комплектуются прочными корпусами. В устаревших моделях корпуса изготовлены из стали – это делало цепные инструменты более тяжелыми и неудобными в эксплуатации. Еще одна типичная проблема тех модификаций заключалась в своеобразном исполнении рукояток. Они располагались сверху, что позволяло распиливать древесину только в поперечном направлении. Современные бензопилы этого бренда лишены старых недостатков. В комплектацию каждой из них входят ударостойкий пластиковый корпус и эргономично расположенные прорезиненные рукоятки.
Мопед
Порядок переделки велосипеда в самоходный агрегат следующий:
- Снимите крышку и снимите шину с корпуса мотора.
- Ходунка сделана в виде дерева, на котором закреплены малая и большая звездочка велосипеда по разным краям.
- На выходном валу мотора устанавливается маленькая звездочка, а на велосипедном колесе — большая звездочка, рядом с имеющейся.
- Установите двигатель и ходовую часть сзади сиденья на дополнительную раму.
- Установлены цепи, которые соединяют меньшую и большую звездочки с двигателем с ходоуменьшителем, а последнюю с колесом велосипеда.
- К рукоятке руля велосипеда подводится рычаг, регулирующий подачу бензина к силовому агрегату.

Окучник из бензиновой пилы
Окучник представляет собой узкоспециализированную технику, которая используется для окучивания картофеля. Одновременно происходит удаление сорняков между рядами.
Собрать окучник из бензопилы несложно. Его конструкция изображена на схеме ниже.
Цифровому обозначению на схеме соответствуют следующие элементы конструкции:
- 1 – рукоять управления мотором;
- 2 – тросик;
- 3,4, 7, 10 – звездочки передач;
- 5 – цепь;
- 6 – колесо;
- 8 – ручка;
- 9 – топливный бачок;
- 11 – крепление мотора;
- 12 – площадка под двигатель;
- 13 – ДВС;
- 14 – рама;
- 15 – плуг (насадка окучника).
Работа самодельного окучника показана далее в ролике.
Кроме рассмотренных вариантов, взяв за основу привод от бензиновой пилы, своими руками можно сделать квадроцикл, мини-вертолет, лебедку, ямобур или ледобур. Для большинства самоделок подходит двигатель мощностью 2-3 кВт (приблизительно 2,7-4,1 л.с.), например, от бензопил «Штиль», «Дружба», «Урал». Но для вертолета потребуется мотор с большим данным параметром. Чтобы выяснить требуемую конкретную величину мощности, понадобится в этом случае проводить точные инженерные расчеты.
Для переделывания рекомендуется использовать старый недорогой инструмент, чтобы в случае быстрой поломки созданного механизма не понести особых финансовых потерь. Лучше использовать модели, которые легко разбираются, а найти на них детали при необходимости замены не составляет труда. Во время сборки следует внимательно соединять детали, следя за тем, чтобы они состыковывались без проблем. Заранее созданные чертежи облегчат и ускорят процесс. В любом случае самодельный агрегат должен быть безопасным.





































