Особенности работы
При использовании четырехстороннего станка по дереву нужно соблюдать правила, указанные в инструкции. Нельзя обрабатывать детали, если их длина или толщина превышает показатели, предусмотренные правилами. Своевременно нужно выполнять профилактические работы, чтобы поддерживать нормальное состояние станка.
Работа будет иметь максимальную эффективность лишь в том случае, если соблюдать следующие правила эксплуатации:
- Заранее рассчитывать скорость, с которой должна перемещаться обрабатываемая деталь. Если не выполнять это условие, то максимальной точности достичь не получится.
- Отдельно заниматься регулированием каждого блока: отдельно следить как за процессом фрезерования, так и за строганием. При этом следует помнить о том, что работа этих двух блоков должна быть согласованной, иначе деталь не приобретет желаемую форму.
- Все отходы, которые появляются на месте работы, особенно образующиеся в области обработки, должны вовремя удаляться.
Настройка станка
Налаживая устройство на необходимую толщину, суппорты верхней ножной головки и верхних вальцов следует устанавливать по высоте посредством маховиков. Установить прижимные ролики помогают винты. Для регулировки ширины применяются боковые прижимы и вертикальный шпиндель. Наладить станок на нужный профиль можно, установив профильные ножи на головках.
Наладка четырехстороннего станка проходит в шесть этапов:
- Установка кромки стола и нижних вальцов на толщину, которая соответствует удаляемому слою древесины.
- Установка верхних вальцов по толщине обрабатываемой детали. При этом должен быть запас на прижим: обычно его делают равным 0,5 см.
- Установка ножей передних головок на уровне стола.
- Регулировка прижимных и верхних роликов по параметрам обрабатываемой детали. В прижимных должен быть запас на прижим — от 1,5 до 2 см, а в роликах — 0,5 см.
- Установка направляющей упорной линейки на расстоянии нескольких миллиметров от вертикальной головки. При этом должен сохраняться прямой угол с нижними вальцами.
- Проверка ножевых головок.
Четырехсторонние станки используются для производства различных строительных и отделочных материалов, а также мебели. Множество самых важных целей можно достичь с помощью этого надежного оборудования. Настройка инструмента – посильная задача для тех, кто усвоит основные принципы из представленной статьи.
Центральной частью станка является литой строгальный стол, который закрепляется на устойчивом штативе. Благодаря такой конструкции исключено возникновение вибрации. Строгальный стол также включает в себя нижнюю и 2 боковые фрезы. Верхняя фреза и вальцы зафиксированы на штативе. Они движутся по массивным штангам. 4 фрезы работают от отдельных двигателей.
Модификация на подвижной плите
Деревообрабатывающие станки четырехсторонние с подвижными плитами самостоятельно изготавливать довольно сложно. В данном случае подбирается роликовый механизм, который способен выдерживать большую нагрузку. Станину необходимо сделать шириною не менее 30 см.
Боковые опоры зафиксировать можно на металлических уголках. Для того чтобы роликовый механизм был неподвижным, используется шкифт. Суппорт в данном случае устанавливать необходимо после мотора. Устройства с ЧПУ встречаются очень редко. Наиболее часто используют обычные блоки управления. Непосредственно люнет применяется кулачкового типа. После его фиксации устанавливается фреза.

Расположение органов управления четырехсторонним строгальным станком С25-5А

Расположение органов управления четырехсторонним строгальным станком С25-5А

Расположение органов управления четырехсторонним строгальным станком С25-5А

- 1. Маховик или рукоятка регулировки скорости подачи
- 2. Рукоятка подъема когтей
- 5. Маховик или квадрат регулировки по высоте переднего стола
- 6. Рукоятка насоса системы смазки столов
- 7. Рукоятка перемещения линейки переднего стола
8. Квадрат регулировки по высоте
9. Квадраты зажима при вертикальном перемещении
10* Гайки зажима дополнительной съемной опоры
22. Квадраты зажима при горизонтальном перемещении (рис.14 и 15)
23. Квадрат регулировки по горизонтали
24. Квадрат регулировки по вертикали (рис.14 и 15)
25. Квадрат зажима при вертикальном перемещении
33. Квадрат регулировки по высоте
34. Квадраты зажима при вертикальном перемещении
35. Квадрат регулировки по горизонтали (рис.16)
36. Винты зажима при горизонтальном перемещении (рис.16)
37. Болты зажима дополнительной съемной опоры
Калевочный суппорт
41. Квадрат регулировки по высоте
42. Квадраты зажима при вертикальном перемещении
43. Квадрат регулировки по горизонтали (рис.17 и 18)
44. Винты зажима при горизонтальном перемещении(рис.17 и 18)
45. Винт регулировки по высоте заднего столика
46. Квадрат зажима направляющих заднего столика
47. Болты зажима дополнительной съемной опоры

Пульт управления строгальным станком С25-5А

- Переключатель включения Фрез
- Переключатель включения Фрез
- Переключатель включения Фрез
- Переключатель включения Фрез
- Переключатель включения Фрез
- Кнопка включения фрез
- Выключатель напряжения
- Кнопка включения подачи «Вперед»
- Кнопка отключения подачи «Вперед»
- Кнопка включения подачи «Назад»
- Кнопка отключения станка
- Кнопка подъема траверсы
- Кнопка опускания траверсы
- Сигнал наличия напряжения
- Сигнал торможения
состоит из следующих основных частей:
– Рабочий и подающий столы;
– Подающие и выталкивающие вальцы;
– Нижний и верхний шпиндели;
– Правый и левый шпиндели;
– Дополнительные шпинделя для создания сложных форм профиля;
– Универсальный шпиндель.
Подающий стол имеет прижимные элементы и возможность регулировки станины по вертикали, что позволяет пропускать через станок заготовки различной толщины.
Так например, для того чтобы придать гладкость сильно деформированной поверхности необходимо удалить большое количество древесины, с другой стороны, прямая древесная заготовка требует снятия очень небольшого слоя материала (достаточно удалить только следы ленточной пилы).
В ситуации, когда нужно выпрямлять древесную заготовку, поступающую в станок, используется прижимной ролик, находящийся перед первым верхним шпинделем. Дополнительный прижимной блок, располагающийся перед первым нижним шпинделем, используется для тонкого материала, который не нуждается в правке. Эта опция может быть отключена посредством панели управления станка.
На первоначальном этапе прохождения материала через очень важно добиться гладкости нижней и правой стороны заготовки, которые являются базовыми для дальнейших операций по приданию нужной формы Вашему изделию.
Другой метод выпрямления древесины – использование рифленого стола, является наиболее подходящим для обработки твердых сортов древесины. В этом случае первый нижний режущий блок формирует канавки на нижней стороне заготовки, по форме повторяющие рисунок рифленого стола, что позволяет уменьшить трение между заготовкой и столешницей и равномерно подавать материал для дальнейшей обработки.
Но этот метод выпрямления древесины требует наличия у четырехстороннего станка еще одного нижнего шпинделя, режущий блок которого будет удалять промежуточные канавки и выравнивать нижнюю поверхность изделия. Рабочий стол может быть оснащен ручной или автоматической системой подачи ваксилита – смазки, растворяющей смолу, для облегчения подачи заготовки. В случае обработки смолистых пород древесины наличие дополнительного нижнего шпинделя также необходимо и для удаления ваксилита с нижней стороны заготовки.
Подающие ролики четырехстороннего строгального станка
Подающие ролики могут быть оснащены пружинными или пневматическими цилиндрами. Ролики должны быть правильно спроектированы, чтобы обеспечивать максимальную тягу и минимальный износ.
Вертикальные шпиндели четырехстороннего строгального станка:
Для вертикальных шпинделей необходима качественная и гибкая система настройки, в противном случае, для изменения вида профиля и, соответственно, диаметра инструмента потребуется достаточно много времени.
Быстрая настройка в части вертикальных шпинделей позволяет добиться оптимального контакта между заготовкой и рабочим столом.
Если вертикальные шпиндели четырехстороннего строгального станка находятся в четко закрепленном положении, диаметр и рабочая высота режущего инструмента, а также скорость подачи и давление подающих роликов регулируются одновременно посредством цифровой панели системы управления. Качественная настройка левого вертикального шпинделя гарантируют высокое качество строжки, и особенно актуальна при работе с твердыми породами древесины.
Топ шпиндель четырехстороннего строгального станка
Топ шпинделем называется первый правый вертикальный шпиндель станка. Режущий инструмент, расположенный на позиции топ может быть использован как для строгания поверхности, так и для профилирования заготовки. Хороший четырехсторонний станок должен давать на верхнем горизонтальном/вертикальном шпинделе до 40 мм профилирования.
Универсальный шпиндель четырехстороннего строгального станка
Строгальный станок может быть оснащен дополнительным универсальным шпинделем с целью достижения большей гибкости профилирования.
Опции четырехстороннего строгального станка
Четырехсторонний строгальный станок может быть оснащен дополнительными опциональными устройствами, такими как: дополнительное устройство подачи после верхнего горизонтального шпинделя, рифленый рабочий стол для обработки древесины твердых пород, удлиненный подающий и рабочий столы, увеличенная мощность двигателей шпинделей и другие.
Для удовлетворения этих требований целесообразно использовать четырехсторонние станки по дереву. Ключевое отличие таких агрегатов заключается в возможности единовременного осуществления нескольких операций.
Созданием самодельного станка
Четырехсторонний станок промышленного изготовления многим не по карману. При этом в некоторых случаях его устанавливать просто не целесообразно. Именно поэтому решением становится создание самодельного деревообрабатывающего станка, который может проводить одновременное снятие материала по 4 сторонам.
Для того чтобы создать четырехсторонний деревообрабатывающий станок своими руками понадобится следующее оборудование и приспособления:
Рама и стол. При изготовлении рамы могут использовать уголки или трубы, которые свариваются между собой для получения цельной конструкции
Стол изготавливают из стального листа.
Особое внимание следует уделить конструкции стола. Как правило, посредине его разделяют двумя валиками, под которым располагается электродвигатель
Для изменения высоты, наклона стола его крепят при помощи регулировочных болтов. Чем больше размеры болтов, тем меньше вибраций будет при работе, а конструкция будет более устойчивой. Регулировочные болты могут и не использоваться, но тогда не будет возможности настраивать четырехсторонний станок согласно особенностям производства.
Ножевой вал также называют важным элементом рассматриваемой конструкции. В больше случаев он приобретается, так как провести качественную балансировку достаточно сложно. При выборе шкивов и ножевого вала следует обращать внимание на варианты исполнения, которые имеют специальные ступени. Ступенчатая цилиндрическая форма позволяет проводить изменение скорости вращения ножевого вала, что существенно повышает возможности станка.
Фрезерование поверхности проходит при вращении ножевого вала вокруг свой оси и контакте с заготовкой. Движение передается через ременную передачу от электродвигателя к режущему инструменту. Рекомендуется устанавливать асинхронный электродвигатель, мощность которого находится в пределе от 2 до 5 кВт. Стоит учитывать тот момент, что с повышением мощности существенно увеличивается производительность, но и электропотребление даже при отсутствии нагрузки будет существенное. Устанавливаемый привод должен быть рассчитан на мощность электродвигателя.

Схема обработки на 4-х стороннем пятишпиндельном станке

Работа шпинделей во время фрезерования вагонки
Как правило, свой четырехсторонний станок изготавливают в зависимости от условий установки и особенностей обработки. Для выполнения работы по подготовке и сборке необходимых деталей следует обзавестись следующими инструментами:
Сварочный аппарат. Деревообрабатывающий четырехсторонний станок состоит из большого количества металлических элементов. Примером можно назвать станину, которую изготавливают из уголков и труб
Следует обратить внимание на то, что использовать обычное резьбовое соединение в данном случае не рекомендуется, так как есть вероятность возникновения сильной вибрации. Все элементы рассматриваемой конструкции должны быть соединены между собой жестко.
Дрель используется для создания отверстий
Для того чтобы можно было настроить высоту расположения стола, проводится создание отверстий для регулировочных болтов.
Болгарка – просто незаменимый инструмент при работе с металлом.
Если предусматривается самостоятельное вытачивание шкивов и роликов, то понадобится и токарный четырехсторонний станок. Можно заказать изготовление новых деталей, но дешевле найти подходящие с различных разобранных приспособлений.
Инструкция по изготовлению стандартная, в зависимости от различных условий на работу может уйти от нескольких дней до месяцев.
Конструкция разных узлов четырехстороннего станка
Чтобы понять, как работает оборудование, необходимо рассмотреть особенности конструкции станка, куда входит большое количество узлов, главные из которых рассмотрим более подробней.
Чугунная станина
В основании станка находится литая чугунина, она может иметь разный сплав и вставки, но обязательно поглощает определенное количество вибрации при работе оборудования и из-за большой массы почти сводит ее к нолю. Для подачи бруса также немаловажен материал, из которого сделан загрузочный стол. Для более удобной работы на столе могут находиться вспомогательные элементы: прижимные валики, линейка и так далее.
Рабочие инструменты
Число шпинделей в деревообрабатывающем станке может устанавливаться от 4 до 8 и более. Все они с учетом модели установлены в разные рабочие блоки с независимыми электродвигателями. Закреплены шпиндели консольно. Число шпинделей зависит от сложности профиля, толщины снятия древесины и потребностей во время обработки бруса.
Во фрезерном четырехстороннем продольном станке находятся рабочие ролики, которые делятся на: правые и левые, верхние и нижние. Основными в конструкции считаются ролики со шпинделями, которые находятся снизу горизонтально и справа вертикально. От того, какое именно количество строгально-коллеровочных элементов предусмотрено в оборудовании, зависит его мощность, производительность и класс.
В модельном ряде разных изготовителей четырехсторонних станков существует универсальное оборудование с элементом, который может заменять любой из вертикальных или горизонтальных шпинделей. Он может обрабатывать изделие под углом, то есть, находиться в качестве наклонного ролика.
По желанию заказчика на некоторые модели оборудования можно установить пильный вал. Это приспособление может по длине раскраивать широкое изделие, что позволяет создать материал с правильной геометрической формой и необходимого сечения.
Устройство подачи
Протяжка, подача и выгрузка изделий в четырехстороннем деревообрабатывающем оборудовании приводное. Вся работа происходит с помощью прижимных и зубчатых прорезиненных валиков. Этой системой можно управляться с пульта, но цена на эти компьютеризированные устройства выше.
Система управления и безопасности
Защитный кожух снижает шум во время обработки бруса, а также защищает оператора от различных травм. Смотровое стекло можно дополнительно оборудовать подсветкой.
Деревообрабатывающий четырехсторонний станок управляется с панели. С учетом модели оборудования с панели управления можно производить несколько действий: скорость подачи изделия к инструментам, установка размеров обрабатываемого бруса, выставляется положение шпинделей относительно диаметра и детали насадки (если оборудование полностью автоматическое), включение и выключение.
От вида оборудования зависит наличие в комплекте гидрошпинделя и джойтера и количество рабочих инструментов. Эти устройства подтачивают ножи непосредственно при обработке изделия.
Изготавливаем фрезерный станок по дереву для домашней мастерской
Фрезерные станки необходимы для работы с фасонными деталями из древесины. Их применяют для плоского фрезерования и обработки профилей. Профессиональное оборудование является многофункциональным и стоит немалых денег, поэтому все больше «самоделкиных» собирают самостоятельно такое оборудование для мастерских и гаражей.
Небольшой станок для фрезеровки, сделанный своими руками
В комплектацию самодельных фрезерных станков по дереву входят:
- Приводящий механизм. Это двигатель, мощность которого колеблется в пределах 1-2 кВт. С таким мотором можно применять различный инструмент для работы с древесиной, не боясь, что произойдет сбой.
- Лифт для регулировки. Обычно в его комплектацию входит корпус, скользящие полозья, каретки, фиксирующий винт и ось с резьбой. Во время работы каретка совершает движения вверх-вниз, а винт нужен для ее фиксации на необходимом уровне.
- Опора. Изготавливается стол из массивной древесины.
Перед сборкой обязательно составьте подробный чертеж со всеми размерами. Для ручных фрезерных станков по дереву необходимо заранее все продумать до мелочей.
3D модель стола для ручного станка
Комплектация оборудования
Габариты рабочего элемента
Выпилка на фрезерном станке
Последовательность самостоятельной сборки удобного и практичного фрезерного станка по дереву для домашней мастерской описана в видеоинструкции:
Watch this video on YouTube
Если вы задумались о покупке собственного оборудования, а не о самостоятельной сборке, то для понимания, сколько стоит ручной фрезерный станок по дереву, посмотрите таблицу с моделями и ценами:
| Наименование модели | Технические характеристики | |
Стол фрезерный Кратон МТ-20-01![]() | размер площадки | 64 на 36 см |
| возможность вертикальной работы | есть | |
| вес оборудования | 15,7 кг | |
Станок фрезерный Корвет-83 90830![]() | мощность двигателя | 750 Вт |
| тип передачи | ременная | |
| частота вращения шпинделя | 11 000 об/мин | |
| вертикальный ход | 2,2 см | |
| диаметр шпинделя | 12,7мм | |
Делаем фрезерный станок с ЧПУ своими руками
Сделать собственное оборудование с числовым программным управлением можно собственными руками. Для этого выберите подходящие чертежи фрезерного станка с ЧПУ по дереву. Своими руками собирать модель нужно будет строго по ним.
Готовый станок для домашней мастерской
Комплектация оборудования
Подробная схема сборки
Модель многофункционального оборудования
Фрезеровочные станки по дереву должны обладать большой прочностью, поэтому за основу лучше взять прямоугольную балку, закрепленную на направляющих. Срок эксплуатации домашнего оборудования и его производительность зависит от правильной сборки. Посмотрите видеоинструкцию по изготовлению такого устройства:
Watch this video on YouTube
Ниже приведены фото готовых моделей станков с ЧПУ по дереву своими руками от профессиональных «самоделкиных»:
1 из 4
Простой и аккуратный станок для гаража
Мини-конструкция для частного использования
Инструменты для сборки самодельного фрезерного станка
Профессиональное оборудование
Фрезы для станков по дереву: особенности и разновидности
Фреза должна выдерживать большие скорости вращения при работе. Только в таком случае будут получаться отверстия нужной формы. Все варианты разделяют на несколько подгрупп:
Конусообразные. Используются для обработки различной древесины под разным наклоном.
Примеры различных фрез
- Профильные. Применяют для декорирования элементов.
- V-образные. Можно изготавливать отверстия в 45⁰.
- Прямоугольные – для создания пазов.
- Дисковые. Выпиливаются пазы разных габаритов.
- Калевочные для закругления краев.
- Фальцевые для работы с четвертями.
Ниже приведены фотопримеры фрез для станков с ЧПУ по дереву, которые по принципу схожи с обычными, но имеют «хвостик»:
1 из 4
Вариант длинных фрез
Многообразие рабочего инструмента
Для работы с разными поверхностями
Создание 3d рисунка при помощи станка с ЧПУ
Фрезы для станков по дереву
Плюсы и минусы оборудования
Одно из наиболее положительных качеств четырехсторонних станков — высокая производительность. Чтобы достичь оптимальных результатов конструкция должна быть оборудована блоком программного числового управления. Тогда влияние человеческого фактора будет минимальным.
Обязательно должны быть выполнены условия по корректному составлению программы, и произведен точный замер обрабатываемой заготовки. В оптимальной комплектации оборудование рассчитано для обработки цилиндрических заготовок и прямоугольного бруса. Фугование и фрезерование листовых материалов можно выполнять с двух сторон. Особенности эксплуатации станков данного типа заключаются в следующих факторах:
- скорость движения по станине заготовки рассчитывается предварительно, чтобы обеспечить максимальную точность обработки;
- каждый блок фугования и фрезерования регулируется отдельно, их функционирование друг с другом должно быть согласованным;
- отходы своевременно удаляются из зоны обработки.
Главные недостатки деревообрабатывающих четырехсторонних станков — высокая стоимость и сложность наладки. Однако в условиях производственной линии эти показатели не существенны.
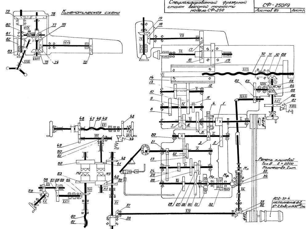
Четырехсторонние продольно-фрезерные станки дают возможность за один проход производить обработку пиломатериалов с четырех сторон. Это оборудование востребовано в массовом, крупносерийном и серийном производствах и позволяет получать продукцию точной геометрической формы. Четырехсторонние деревообрабатывающие станки дают возможность осуществлять целый ряд технологических операций, в том числе фрезерование, рейсмусование, фугование и профилирование. Эти установки востребованы при изготовлении вагонки, половой доски, бруса, блок-хауса, плинтуса, наличника и других погонажных изделий.
В основе функционирования любого четырехстороннего деревообрабатывающего станка лежит метод традиционного фрезерования. Такое оборудование обеспечивает качественную обработку и высокую точность резания деревянных поверхностей. Современные четырехсторонние деревообрабатывающие станки характеризуются наличием мощной цельнолитой станины. Обработка заготовки осуществляется посредством вращающегося режущего инструмента. Характерной специфичной особенностью таких деревообрабатывающих станков является наличие нескольких прецизионных шпинделей (четырех, пяти, шести и более). Они располагаются снизу, сверху и по бокам заготовки. То есть она обтачивается одновременно с четырех сторон за один проход. Для получения погонажных изделий со сложным профилем производится регулировка положения фрез и выполняется замена насадок. Обеспечить плавность подачи зафиксированной деревянной заготовки позволяют специальные ролики. Для выполнения оперативной наладки оборудование оснащено цифровой системой управления. Автоматика четырехсторонних станков упрощает запуск и остановку оборудования, установку положения шпинделей и настройку скорости подачи заготовок.
Одновременное выполнение нескольких операций с четырех сторон способствует сокращению времени изготовления погонажных изделий и повышению рентабельности производства. Это обстоятельство делает такое оборудование оптимальным выбором при оснащении предприятий деревообрабатывающей промышленности.
Приобрести четырехсторонний деревообрабатывающий станок можно, связавшись с офисом ООО «СДТ» по телефонам: +7 (499) 265-56-79, +7 (499) 261-22-78.
Одни из важных показателей современных деревообрабатывающих станков — производительность и качество работы, которая на нем выполняется. Оборудование, отвечающее обоим требованиям — четырехсторонний станок. Особенность конструкции таких механизмов в том, что они могут выполнять одновременно несколько операций, при этом древесина обрабатывается сразу с четырех сторон.
Станки для мастерской
Ниже будет описан общий принцип сборки станков для мастерской, который можно взять за основу, а сборку производить из доступных материалов.
Токарный по дереву и металлу
Стоит сразу сказать, что на таком токарном станке в домашней мастерской можно будет обрабатывать только небольшие металлические заготовки
Важной частью станка для мастерской, которая будет обеспечивать стабильность обработки, является станина. Ее можно изготовить самостоятельно или использовать заводскую
Для самостоятельного изготовления можно использовать профилированную трубу или прочный уголок
Два элемента размещаются на подходящем расстоянии и надежно закрепляются между собой поперечными элементами. Примеры конструкций станков для домашней мастерской видны на фото выше и ниже
Для самостоятельного изготовления можно использовать профилированную трубу или прочный уголок. Два элемента размещаются на подходящем расстоянии и надежно закрепляются между собой поперечными элементами. Примеры конструкций станков для домашней мастерской видны на фото выше и ниже.
В качестве двигателя, который будет вращать деталь можно использовать агрегат от старой стиральной машины, насоса или какого-либо станка. В качестве задней бабки можно использовать мощный патрон для дрели. В этом случае в него можно будет вставлять конус или сверло, если это потребуется при обработке. Переднюю бабку можно приобрести заводскую или изготовить по образцу на фото.
В этом случае потребуется металлическая ось, лучше, если она будет изготовлена из закаленной стали. Необходимо два держателя с подшипниками под ось. С одной стороны фиксируется шкив, а с другой патрон, в который будет зажиматься заготовка. Двигатель на такой станок для мастерской устанавливается рядом с передней бабкой, а усилие передается через ремень. Скорость можно варьировать частотным модулем или перекидкой ремня по шкиву. Потребуется также опорный элемент, который изготавливается по схематическому рисунку, приведенному ниже.
Видео о самостоятельной сборке токарного станка по дереву есть ниже.
Фрезерный станок
Фрезерный станок для домашней мастерской также собрать довольно просто. Одним из вариантов является использование готового ручного фрезера, который является незаменимым для хозяина, который любит что-то делать из древесины в своей мастерской.
Для ручного станка можно изготовить специальный верстак в домашнюю мастерскую. На фото показан пример такого стола. По своей сути это небольшой стол, в котором есть отверстие для фрезы и крепление для самого фрезера. При желании сделать это в мастерской можно и на готовом верстаке
Важно подобрать наиболее удобное место для фиксации фрезера. Во время крепления необходимо правильно рассчитать максимальный вылет фрезы
При работе таким способом потребуется полностью поднимать заводскую опору на ручном фрезере
Включение и выключение можно реализовать через удлинитель с выключателем. Недостатком такого метода является необходимость ручной регулировки оборотов непосредственно на самом фрезере. Видео о самодельном фрезерном станке есть ниже
При работе таким способом потребуется полностью поднимать заводскую опору на ручном фрезере. Включение и выключение можно реализовать через удлинитель с выключателем. Недостатком такого метода является необходимость ручной регулировки оборотов непосредственно на самом фрезере. Видео о самодельном фрезерном станке есть ниже.
Совет! При наличии двигателя требуемой мощности и частотного преобразователя можно соорудить стационарный фрезерный станок в мастерской.
Для этого двигатель закрепляется к нижней части стола. На вал двигателя монтируется патрон для фрезы. Подключение осуществляется через частотник, который будет варьировать обороты.
Сверлильный станок
В качестве сверлильного станка в мастерской можно использовать дрель. Но для этого ее необходимо правильно зафиксировать. Сделать это можно посредством держателя, который может быть стационарным для мастерской или переносным. Есть множество различных вариантов сборки такого держателя дрели для мастерской. Один из них приводится в видео ниже. Для сборки потребуются материалы, которые есть в шаговой доступности в каждом строительном магазине.
Циркулярная пила
Стационарную циркулярную пилу для мастерской можно изготовить похожим образом, как и держатель для ручного фрезера. Достаточно изготовить в столешнице прорезь для полотна плиты и монтировать ее, когда это потребуется. Единственным недостатком такого решения является уменьшение глубины реза. Исправить это можно установкой на металлическую столешницу, которая меньше по толщине. Видео о сборке такой конструкции есть ниже.
Созданием самодельного станка
Четырехсторонний станок промышленного изготовления многим не по карману. При этом в некоторых случаях его устанавливать просто не целесообразно. Именно поэтому решением становится создание самодельного деревообрабатывающего станка, который может проводить одновременное снятие материала по 4 сторонам.
Для того чтобы создать четырехсторонний деревообрабатывающий станок своими руками понадобится следующее оборудование и приспособления:
Рама и стол. При изготовлении рамы могут использовать уголки или трубы, которые свариваются между собой для получения цельной конструкции
Стол изготавливают из стального листа
Особое внимание следует уделить конструкции стола. Как правило, посредине его разделяют двумя валиками, под которым располагается электродвигатель
Для изменения высоты, наклона стола его крепят при помощи регулировочных болтов. Чем больше размеры болтов, тем меньше вибраций будет при работе, а конструкция будет более устойчивой. Регулировочные болты могут и не использоваться, но тогда не будет возможности настраивать четырехсторонний станок согласно особенностям производства. Ножевой вал также называют важным элементом рассматриваемой конструкции. В больше случаев он приобретается, так как провести качественную балансировку достаточно сложно
При выборе шкивов и ножевого вала следует обращать внимание на варианты исполнения, которые имеют специальные ступени. Ступенчатая цилиндрическая форма позволяет проводить изменение скорости вращения ножевого вала, что существенно повышает возможности станка
Фрезерование поверхности проходит при вращении ножевого вала вокруг свой оси и контакте с заготовкой. Движение передается через ременную передачу от электродвигателя к режущему инструменту. Рекомендуется устанавливать асинхронный электродвигатель, мощность которого находится в пределе от 2 до 5 кВт. Стоит учитывать тот момент, что с повышением мощности существенно увеличивается производительность, но и электропотребление даже при отсутствии нагрузки будет существенное. Устанавливаемый привод должен быть рассчитан на мощность электродвигателя.
Затронув тему привода следует учесть, что в подобной конструкции используется исключительно ременной тип передачи вращения от электродвигателя к валу с ножами. Это связано с тем, что изменение величины подачи может приводить к резкому скачку усилия, возникающего на валу. Другими словами, ременная передача выступает в качестве предохранительного механизма, который предотвращает передачу вибрации и сильной нагрузки на выходной вал электродвигателя. Ременная передача при сильной нагрузке может проскальзывать, она издает шум при работе станка, но также позволяет регулировать частоту вращения ножевого вала. Для того чтобы одновременно могла быть обработана каждая сторона, устанавливаются прижимные ролики. Их довольно просто выточить или можно взять уже готовые, к примеру, от выжимного устройства старой стиральной машины.
Работа шпинделей во время фрезерования вагонки
Как правило, свой четырехсторонний станок изготавливают в зависимости от условий установки и особенностей обработки. Для выполнения работы по подготовке и сборке необходимых деталей следует обзавестись следующими инструментами:
Сварочный аппарат. Деревообрабатывающий четырехсторонний станок состоит из большого количества металлических элементов. Примером можно назвать станину, которую изготавливают из уголков и труб
Следует обратить внимание на то, что использовать обычное резьбовое соединение в данном случае не рекомендуется, так как есть вероятность возникновения сильной вибрации. Все элементы рассматриваемой конструкции должны быть соединены между собой жестко
Дрель используется для создания отверстий
Для того чтобы можно было настроить высоту расположения стола, проводится создание отверстий для регулировочных болтов. Болгарка – просто незаменимый инструмент при работе с металлом. Если предусматривается самостоятельное вытачивание шкивов и роликов, то понадобится и токарный четырехсторонний станок. Можно заказать изготовление новых деталей, но дешевле найти подходящие с различных разобранных приспособлений.
Инструкция по изготовлению стандартная, в зависимости от различных условий на работу может уйти от нескольких дней до месяцев.
Принцип работы
Рассматривая принцип работы типичного станка, который проводит обработку заготовки по 4 сторонам, отметим, что четырехсторонний станок проводит снятие материала по всей ширине заготовки за один или несколько проходов. Устройство проводит шлифование сверху и снизу, но при этом еще образует необходимый профиль по боковым сторонам. При этом образованный боковой профиль может быть пазом, шипом различной формы. Тип получаемого профиля зависит от выбора мастера.
Зачастую корпус крепиться к основанию жестко, что позволяет эффективно гасить вибрацию, что существенно повышает качество обработки. Однако есть и переносные варианты исполнения, которые имеют небольшой вес и габаритные размеры. Их можно использовать для установки в гараже или другом помещении.

Схема строгания заготовки на 4-х стороннем станке
Основными узлами конструкции можно считать:
- элемент, настроенный на правильную подачу заготовки;
- узел, который представлен фрезами со строгальными элементами.
Важно отметить, что при плохом качестве подающего заготовку механизма обработка будет проводится на малом уровне точности
Поэтому при изготовлении самодельного варианта исполнения важно обратить внимание на этот элемент деревообрабатывающего станка
При рассмотрении зоны резания, где расположены фрезы, важно обратить внимание на скорость их вращения. Для высокого качества обработки свойственна скорость вращения в пределе от 4500 до 5000 оборотов в минуту. Для бытового применения можно создавать конструкцию, которая будет иметь меньший показатель скорости вращения режущего инструмента
Для бытового применения можно создавать конструкцию, которая будет иметь меньший показатель скорости вращения режущего инструмента.

Принцип работы станка







































